TÉRMINOS DE REFERENCIA.
REMODELACION Y MEJORAS PARA FUNCIONAMIENTO DE OFICINAS ASOCIACIÓN VISION MUNDIAL HONDURAS UBICADAS EN SANTA ROSA DE COPAN”
ENERO 2025
World Vision Honduras
DECLARACIÓN DE CONFIDENCIALIDAD
Publicado, Enero 2025
Contenido
- ANTECEDENTES............................................................................................. 3
- OBJETIVOS ESPECÍFICOS............................................................................ 3
- CLÁUSULA DE POLÍTICA ANTICORRUPCIÓN........................................ 3
- CLAUSULA POLÍTICADE PROTECCIÓN DE LA NIÑEZ Y SALVAGUARDIA DE ADULTOS.4
- VISITA DE CAMPO...................................................................................... 4
- DESCRIPCION TECNICADEL ESTUDIO.................................................. 5
- CRITERIOS DE EVALUACION................................................................... 7
- OFERTAS ECONÓMICAS........................................................................... 7
- PERSONAS CONTACTO............................................................................ 7
- TIEMPO Y LUGAR DE ENTREGA DEL EQUIPO...................................... 8
- FORMA Y FECHA PARA PRESENTAR OFERTAS.................................. 8
- DOCUMENTACIÓN FISCALA INCLUIR EN SUS PROPUESTAS........... 8
- CARACTERISTICAS CONTRACTUALES................................................. 9
- FORMA DE PAGO....................................................................................... 9
- GARANTÍAS (DE CALIDAD DE OBRA)..................................................... 9
- ALCANCE.................................................................................................. 10
- VALIDEZ DE LAS PROPUESTAS............................................................ 10
Glosario
| CO | Centro Operativo |
| PA | Programa de Área |
| PI | Programa integrado |
- ANTECEDENTES:
Visión Mundial es una organización cristiana de desarrollo, promoción de justicia y atención a emergencias, dedicada a trabajar con los niños, las niñas, familias y comunidades para superar la pobreza y la injusticia sin distinción de religión, raza, etnia o género.
El compromiso de la organización es con los niños, con el propósito de ayudarles a garantizar un mejor futuro, enfocándose en la transformación y empoderamiento de las familias y comunidades.
Para poder responder a los derechos y necesidades de la niñez, las intervenciones se articulan entre los sectores en los cuales Visión Mundial ha desarrollado su experiencia y mejores prácticas a lo largo de los años: Educación, Salud, Desarrollo Económico, Agua, Saneamiento y Vivienda, Promoción de Justicia e Incidencia Política, Gestión Comunitaria y Asuntos Humanitarios en Emergencia.
World Vision Honduras atiende comunidades vulnerables en diferentes partes del país, donde la situación socioeconómica de las familias agudiza la problemática que atraviesan específicamente en los temas de acceso al agua.
OBJETIVO
Readecuar espacio para la oficina, construcción de parqueo y acceso.
OBJETIVOS ESPECÍFICOS:
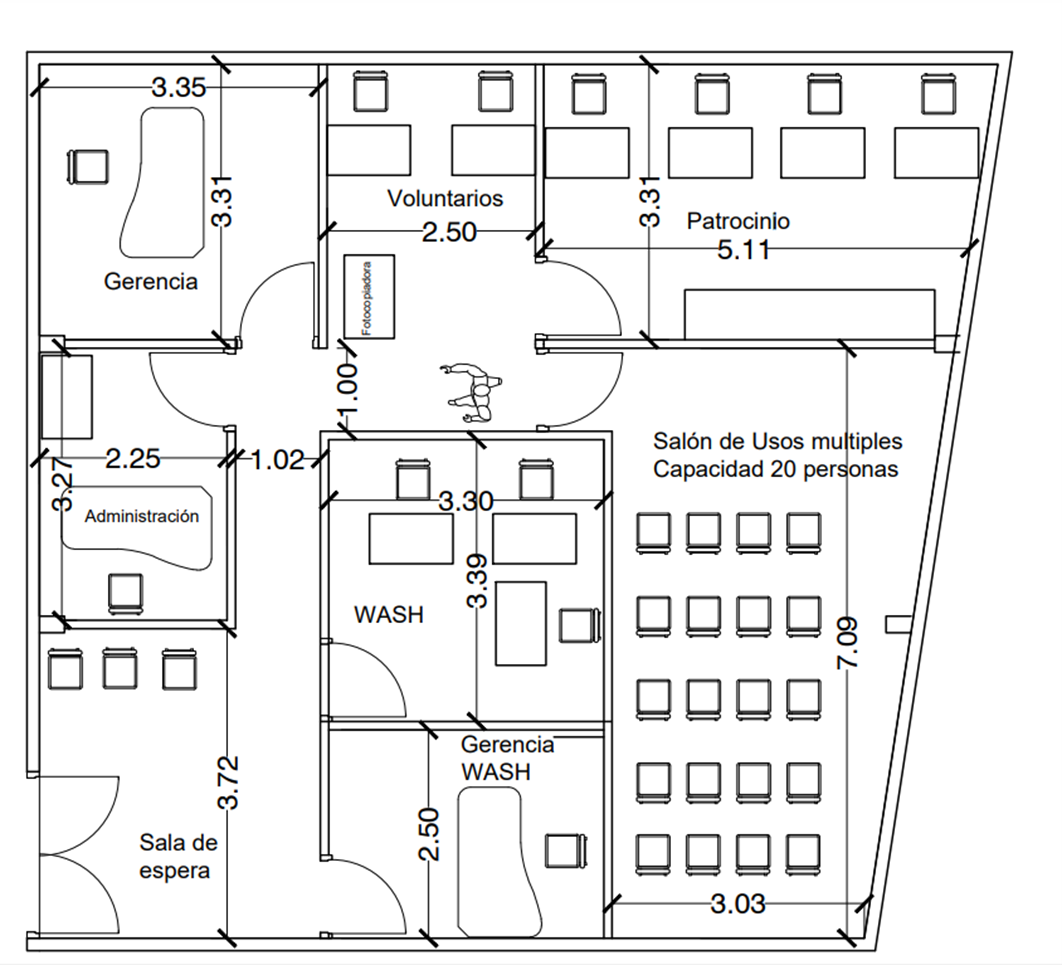
- División de espacio de oficina con tabla yeso.
- Construcción de parqueo para 4 vehículos.
- Rampa de acceso al parqueo.
- CLÁUSULA DE POLÍTICA ANTICORRUPCIÓN:
Visión Mundial Honduras tiene “Cero” tolerancia hacia los incidentes de violencia o abuso
contra niños o adultos cometidos por empleados u otros afiliados de WV (incluyendo
voluntariado/pasantes, donantes, patrocinadores, visitas, socios, personas que integran la Asamblea y Junta Directiva, consejo asesor, proveedores de bienes o servicios), por lo que incluye estándares que son las medidas que la Confraternidad de Visión Mundial exige para desarrollar, implementar y monitorear la protección a la niñez y beneficiarios adultos. Por lo que deberá comprometerse a conocer, firmar y cumplir la Política de Protección de la Niñez y Salvaguardia de Adultos.
- CLAUSULA POLÍTICA DE PROTECCIÓN DE LA NIÑEZ Y SALVAGUARDIA DE ADULTOS
El Contratista comprende completamente y acepta cumplir la Política de Gestión de Salvaguardia de Niños y Adultos de la Confraternidad de World Vision (versión 1; vigente a partir del 29 de agosto de 2018), también conocida como la Política de Salvaguardia.
Entiende que cualquier acción que sea inconsistente con la Política de Salvaguardia de World Vision, incluida la falta de acción exigida por esta política, puede resultar en la finalización de la relación contractual con la Organización.
Se anexa para conocimiento y firma la política de Protección de la Niñez y Salvaguardia de Adultos y protocolos de comportamiento y prevención de daño en las comunicaciones. La conducta inapropiada para con la niñez y beneficiarios adultos, incluyendo el incumplimiento de los Protocolos de Comportamiento de Visión Mundial o incurrir en cualquier tipo de abuso contra un niño, niña o beneficiarios adultos, es causal de terminación del contrato sin responsabilidad para Visión Mundial Honduras y sin perjuicio de lo que en derecho corresponda.
- VISITA DE CAMPO
Con el propósito de obtener mejor comprensión y apreciación del tipo de propuesta, se requiere hacer el reconocimiento en sitio, se solicita que esta consultoría, realice la respectiva visita para identificar y verificar en campo la información del estudio técnico, obtener datos relacionados para planificar y considerar elaboración de la propuesta.
Se tiene programada por parte de Visión Mundial una visita obligatoria con los ofertantes al sitio de las obras las cuales se realizarán el viernes 10 de enero a las 9:00 am. Coordinar visita con Neri Torres 3163-9270.
Se reitera, esta visita es de carácter OBLIGATORIO porque es necesario que los oferentes puedan revisar y constatar en campo los datos necesarios para la elaboración de la propuesta.
- DESCRIPCION TECNICA DEL ESTUDIO
Para la presente consultoría se han estimado las siguientes cantidades de obra:
Nota: La propuesta debe incluir los materiales y mano de obra.
- CRITERIOS DE EVALUACION
| CRITERIO | EVALUACION % |
| Oferta técnica y económica | 50% |
| Documentación legal | 25% |
| Tiempo de ejecución | 25% |
| TOTAL | 100% |
- OFERTAS ECONÓMICAS:
Las ofertas económicas deben reunir las condiciones siguientes:
- Incluir en su oferta, los impuestos respectivos.
- Incluir costos de flete y movilización hacia cada uno de los sitios requeridos.
- Cronograma del proceso donde se pueda estimar tiempos de respuesta y entrega.
Cantidades de obra | |||||
| Concepto | Unidad | Cantidad | P. Unitario | Importe | |
| OFICINA | |||||
| PAREDES | |||||
| Pared Tablayeso | m2 | 148.00 |
|
| |
| PUERTAS | |||||
| Sum e Inst Puerta Termoformada P/01 | Un. | 6.00 |
|
| |
| INSTALACION ELECTRICA | |||||
| Circuito de Fuerza hasta 20 Amp | mL | 200.00 |
|
| |
| Sum e Inst Tomacorriente Doble | Un | 10.00 |
|
| |
| Desmontaje Aire Acondicionado | Un | 3.00 |
|
| |
| Instalacón Aire Acondicionado | Un | 3.00 |
|
| |
| Sum e Inst Circuito Aire Acondicionado | mL | 50.00 |
|
| |
| ACABADOS | |||||
| Aplicacion sellador pared nueva | m2 | 450.00 |
|
| |
| Pintura Acrilica Paredes | m2 | 450.00 |
|
| |
| RAMPA DE ACCESO |
|
|
|
| |
| Pavimento concreto hidraulico 15 cm | m2 | 50.00 |
|
| |
| PARQUEO | |||||
| CORTE Y CONFORMACION | |||||
| Excavacion Suelo Tipo II (Semi duro) | m3 | 5.00 |
|
| |
| Acarreo material Desperdicio | m3 | 8.00 |
|
| |
| Trazado y marcado | mL | 48.00 | |||
| Cimentacion de mamposteria | m3 | 2.00 | |||
| Dado de concreto 60x60x60 | Un | 6.00 |
| ||
| Grava de rio capa 5 cm | m3 | 24.00 |
| ||
| Sum e Ins Columna Tubo 4"x4" | mL | 30.00 |
| ||
| Sum e Inst Techo canaleta/lamina aluzinc | m2 | 110.00 |
| ||
| LIMPIEZA FINAL DE EXTERIORES | m2 | 200.00 |
| ||
- PERSONAS CONTACTO:
Ing. Neri Torres contacto técnico (Oficial Enlace)
Celular: 3163-9270
Correo electrónico: [email protected]
Hery Molina
Celular: 3213-0428
Correo electrónico: [email protected]
Doris Alfaro
Celular 3181-1527
Correo electrónico: [email protected]
TIEMPO Y LUGAR DE ENTREGA
El tiempo para la ejecución de la presente consultoría será de tres semanas a partir de la emisión de la orden de compra.
- FORMA Y FECHA PARA PRESENTAR OFERTAS:
Las ofertas se presentarán de la siguiente forma:
Las ofertas se presentarán en sobre cerrado a más tardar el día viernes 17 de enero a las 4:00 *p.m. en la siguiente dirección:
Oficinas de World Vision Honduras Santa Rosa de Copan, B. El Calvario media cuadra al noreste de ASONOG.
El sobre con la propuesta se debe identificar con el nombre de: “REMODELACION Y MEJORAS PARA FUNCIONAMIENTO DE OFICINAS ASOCIACIÓN VISION MUNDIAL HONDURAS UBICADAS EN SANTA ROSA DE COPAN” sellado y debe ser dirigido a:
Hery Molina / Doris Alfaro
Oficina Santa Rosa de Copan
World Vision Honduras
Toda pregunta que se generara para elaborar las propuestas se debe hacer vía correo.
- DOCUMENTACIÓN FISCAL A INCLUIR EN SUS PROPUESTAS:
- Permiso de Operaciones Vigente
- RTN
- Escritura pública
- Documento fiscal de la SAR (Factura vigente)
- Cédula de identidad del representante legal
- RTN del representante legal
- Datos generales de la empresa y persona de contacto
- # de cuenta bancaría de la empresa para depósito
- Catálogos técnicos.
- Constancia de pagos a cuenta y Declaración de Impuestos
Nota: Los documentos enviados son de total confidencialidad.
- CARACTERISTICAS CONTRACTUALES
El Contrato entrará en vigencia a partir de la emisión de la orden de compra del ente contratante, la cual tendrá duración de dos meses (máximo), y podrá ser extendido de acuerdo a las necesidades de la organización.
La Propuesta Económica presentada por la Empresa detallará los precios por insumo (formato libre).
La obra deberá ser recibida por el personal técnico (Oficial Enlace) designado por WVH.
- FORMA DE PAGO:
World Vision Honduras (WVH) emitirá Orden de Compra como respaldo del compromiso de pago y se efectuará contra entrega del servicio terminado.
El pago se hará mediante transferencia a cuenta proporcionada por la empresa seleccionada, considerando un crédito máximo de 30 días, una vez recibida la factura y comprobantes de entrega. Datos a revisar de acuerdo a las condiciones que plantee el proveedor.
- GARANTÍAS (DE CALIDAD DE OBRA)
Se le retendrá el 5% del monto total del valor adjudicado por garantía de calidad, por un periodo de 6 meses para garantizar la calidad. Si las obras construidas presentaren desperfectos en el tiempo mencionado, se ejecutará sin mayor trámite la garantía antes mencionada a favor de Asociación Visión Mundial Honduras.
- GARANTÍA DE CUMPLIMIENTO DE OBRA
El proveedor se compromete a presentar una garantía bancaria por cumplimiento de obra cuando el contrato tenga un monto igual o mayor a L. 500,000.00, esta garantía debe ser por un valor equivalente al 15% del monto total del contrato presentada antes de la firma de este considerando el margen de tiempo estipulado por WVH, en caso de no presentar esta en el tiempo estipulado es motivo suficiente para rescindir de la adjudicación del contrato. Al finalizar los alcances del contrato, WVH emitirá una constancia de finiquito para la liberación de esta garantía.
- ALCANCE
La Empresa seleccionada deberá construir y proveer todos los materiales para las obras solicitadas, tales como accesorios y bienes complementarios de Instalación, así como la mano de obra especializada requerida, sin costo alguno a la Institución.
La Empresa seleccionada deberá de cubrir los costos de vivienda, alimentación, seguros de vida y gastos médicos de su personal si sucediera alguna eventualidad en los trabajos a desarrollar.
La Empresa seleccionada al concluir sus trabajos, dejará el sitio en las mismas o mejores condiciones en que se hallaba al iniciar los trabajos. Retirará toda la basura generada y la dispondrá en los lugares aprobados por la municipalidad respectiva.
- VALIDEZ DE LAS PROPUESTAS
Las ofertas deben tener un período de validez de por lo menos sesenta (60) días calendario, contados a partir de la fecha límite para la presentación de las mismas.
Favor apegarse a los requerimientos solicitados en estos términos de referencia para lo cual se proporcionan los formatos y formularios se aceptan sugerencias y recomendación.

