Secretaria de Agricultura y Ganadería-SAG
Proyecto Integral de Desarrollo Rural y Productividad-Pro-Occidente Préstamo BID 4940/BL-HO
Referencia: Proceso CP-PIDRP-4940-002-2025 -Aclaraciones #2 de Consultas de Convocatoria para Contratación de Servicios de Remodelación de la Oficina Regional La Esperanza, Intibucá del Proyecto Pro- Occidente
Fecha: 22 de septiembre del 2025
En atención a la solicitud presentada por los posibles interesados en el proceso, se detallan a continuación las preguntas y respuestas correspondientes a la segunda ronda de aclaratorias
- ¿Cuál es la funcionalidad del ítem entabicado de ladrillo rafon de 15 cm? ¿Cuál es la altura promedio a la que se debe considerar el entabicado?
Respuesta: El entabicado corresponde a la construcción de un entabicado hasta la altura de 15 cm conformado por ladrillo rafon y ligado con mortero de cemento en una proporción 1:4, en todo el perímetro para nivelar y tapar el espacio entre la solera y la pared. La altura puede variar en algunos tramos, por lo que se pagará por los metros lineales ejecutados.
- ¿Se debe considerar efectuar ranuras/resanes en paredes existentes para instalación de ductería para instalaciones eléctricas?
Respuesta: Actualmente las instalaciones eléctricas están bajo repello, se debe considerar realizar ranuras para instalar ducteria donde se requiera, ya que algunos interruptores y tomacorrientes no funcionan.
- ¿Quién será responsable de efectuar el desmontaje de tanque Rotoplas existente?
Respuesta: Se debe considerar en la oferta la actividad desmontaje del tanque Rotoplas.
- ¿Se considera cargar los castillos de concreto existentes en área de acceso al módulo
o contemplaran construir nuevas columnas? ¿Si se usan los castillos existentes se deberá anexar un complemento para incrementar su altura?
Respuesta: Considerar sustituir las columnas de concreto existentes por tubo cuadrado de 4" en la parte frontal del edificio.
En planos se visualizan 10 vigas aéreas metálicas si consideramos las que ubicadas en los extremos del módulo que general las 4 aguas del módulo principal, a esto deben sumarse otras vigas para el área de techo que sobresale sobre el acceso al módulo, favor definir la cantidad correcta de vigas aéreas metálicas a considerarse
Respuesta: Agregar 3 vigas metálicas adicionales, 1 para cada extremo del edificio para las caídas a 4 aguas y 1 viga metálica adicional para la parte frontal del edificio. La actividad viga metálica será pagada también por M.L. ejecutados.
- Si se considera el uso de lámina Aluzinc tipo teja para este inmueble no deben considerarse la instalación de clavadores de canaleta 2x4 a cada 60 cms para cumplir la especificación técnica de clavadores para lamina de Aluzinc tipo teja?
Respuesta: La actividad suministro e instalación de techo se debe considerar las canaletas de 2"x4" como clavadores espaciados según las especificaciones del fabricante de la lámina.
- ¿Debe considerarse cielo falso en áreas de aleros?
Respuesta: Considerar el área adicional de cielo falso en los aleros
- Debe considerarse el diente/dado de mampostería de 30x20 cms dentro del ítem de acera perimetral tal y como lo indica el plano?
Respuesta: La actividad acera perimetral considera el dado de 0.20x0.30 m de mampostería para el apoyo de la acera.
- ¿Se considera la demolición de la losa aérea para tanque?
Respuesta: Se debe considerar en la oferta la construcción de la losa para el tanque elevado, ya que actualmente solo está apoyado en vigas de concreto.
Atentamente,
Nelson Gamero Coordinador General Proyecto Pro Occidente
_______________________________________________________________________________________________________________________________________
Secretaria de Agricultura y Ganadería-SAG
Proyecto Integral de Desarrollo Rural y Productividad-Pro Occidente Préstamo BID 4940/BL-HO
Referencia: Proceso CP-PIDRP-4940-002-2025 – Aclaraciones #1 de Consultas de Convocatoria para Contratación de Servicios de Remodelación de la Oficina Regional La Esperanza, Intibucá del Proyecto Pro-Occidente
Fecha: 17 de septiembre del 2025
En respuesta a la solicitud de posibles interesados en el proceso, se comunican las siguientes preguntas y respuestas:
- El material obtenido producto de los desmontajes descritos en los ítems 1, 2 y 3 ¿que se hará con él? ¿se deberá acarrear adonde y que distancia?
Respuesta: En lo que respecta al material de desperdicio: láminas de techo, cielo falso, material eléctrico, material resultante de la demolición del piso de concreto, material de desperdicio resultante de la demolición del piso mosaico y material resultante de la demolición de paredes de concreto y tabla yeso, se deberá acarrear al relleno sanitario de la Esperanza, Intibucá. Las fichas de demolición deberán incluir el costo de este acarreo.
- El material producto de las demoliciones descritas en los ítems 4, 5 y 6 ¿que se hará con esos desperdicios? ¿se botará fuera del predio? ¿Dónde incluimos ese costo?
Respuesta: En lo que respecta al material de desperdicio: láminas de techo, cielo falso, material eléctrico, material resultante de la demolición del piso de concreto, material de desperdicio resultante de la demolición del piso mosaico y material resultante de la demolición de paredes de concreto y tabla yeso, se deberá acarrear al relleno sanitario de la Esperanza, Intibucá. Las fichas de demolición deberán incluir el costo de este acarreo.
El ítem No.3 "Desmontaje De Cielo Falso" en la hoja de presupuesto solo dice desmontaje, pero en las especificaciones describe el desmontaje, actividades eléctricas y el suministro e instalación de cielo falso nuevo de PVC, esta última actividad descrita está en el ítem. No.12 ¿debemos entender que las especificaciones reúnen 2 o 3 ítems? favor aclarar.
Respuesta: En el caso de la actividad desmontaje de cielo falso se deberá entender como su desmontaje y acarreo, incluyendo el desmontaje de las instalaciones eléctricas. En la actividad suministro e instalación del cielo falso esta se debe entender con el desmontaje ya realizado.
- La viga aérea metálica de tubo estructural se describe el detalle, pero no su posición, favor aclarar.
Respuesta: En el caso de las vigas metálicas de tubo estructural estas estarán espaciadas a cada 3.00m, incluyendo las ubicadas en las culatas.
El ítem No.10 describe el techo con canaleta de 4", las especificaciones explican que los clavadores son de canaleta de 2"X4" pero las vigas (que entendemos son las mismas tijeras) son de tubo de 4"X4" pero en el plano nos habla de tijeras de tubo estructural de 2"X6" favor aclarar el detalle. Por otro lado, si las tijeras son del tubo de 4X4 en las cantidades de obra descritas del ítem. No.10 nos da 9 y según el plano son mas, favor aclarar.
Respuesta: En el caso de la actividad de techo será de canaleta de 2"x4" como clavadores apoyada en las vigas metálicas de tubo estructural de 4"x4".
Atentamente,
__________________________________________________________________________________________________________
Tegucigalpa, M.D.C., 09 de Septiembre de 2025
COT-ProOccidente-003-2025
Señores
Presente
Su Oficina
Ref: CP-PIDRP-4940-002-2025 – Contratación de Servicios de Remodelación de la Oficina Regional La Esperanza, Intibucá del Proyecto Pro-Occidente.
Estimados Señores:
El gobierno de República de Honduras y la Secretaría de Agricultura y Ganadería (SAG) a través del Proyecto Integral de Desarrollo Rural y Productividad (PRO-OCCIDENTE) préstamo BID 4940/BL-HO, financiado a través del Banco Interamericano de Desarrollo (BID), invita a las empresas legalmente constituidas así como a contratistas individuales inscritos en el CICH, CAH y CIMEQ a presentar cotización para la Contratación de Servicios de Remodelación de la Oficina Regional La Esperanza, Intibucá del Proyecto Pro-Occidente, para la ejecución del proyecto representado por la Unidad Coordinadora de Proyectos de la Secretaria de Agricultura y Ganadería (UAP-SAG). El Proyecto pretende utilizar parte de los fondos del Gasto Operativo de este crédito para efectuar pagos elegibles referentes al ítem anexo.
El Proyecto PRO-OCCIDENTE, invita a las empresas elegibles a presentar cotizaciones para la “Contratación de Servicios de Remodelación de la Oficina Regional La Esperanza, Intibucá del Proyecto Pro-Occidente”, conforme a la descripción detallada en las Especificaciones Técnicas de este documento de solicitud de cotización, Anexo A. Las ofertas además deberán de contener la información que se solicita en la sección “Instrucciones para la preparación de las cotizaciones”.
La Solicitud de Cotizaciones se efectuará conforme a los procedimientos indicados en las: Políticas para la Adquisición de Bienes y Obras financiadas por el Banco Interamericano de Desarrollo GN-2349-9, Marzo 2011, específicamente “III. Otros Métodos de Contratación, 3.5 Comparación de Precios (CP)”.
El Contrato que resulte de esta adquisición, será pagada con fondos externos provenientes del Proyecto PRO-OCCIDENTE crédito (4936/BL-HO, 4940/ BL-HO).
Las cotizaciones podrán presentarse vía email, o mediante sobres sellados, a la siguiente dirección física o electrónica con el siguiente título:
Proceso: “CP-PIDRP-4940-002-2025 Contratación de Servicios de Remodelación de la Oficina Regional La Esperanza, Intibucá del Proyecto Pro-Occidente”.
E-mail: [email protected]
Dirección Física Oficinas del Proyecto PRO-OCCIDENTE, Km 1 salida a Marcala en las Instalaciones de SAG-DICTA, La Esperanza, Intibucá, Honduras, C.A. y/o Oficinas del Proyecto PRO-OCCIDENTE ubicadas en Boulevard Morazán, Colonia San Carlos, Edificio Los Castaños, 5to Piso, Tegucigalpa, Honduras, M.D.C., a más tardar el día 25 de septiembre de 2025 a las 16:00 p.m. Hora oficial de la República de Honduras.
Al agradecerles su amable participación les saluda.
Atentamente,
Proyecto ProOccidente
Secretaria de Agricultura y Ganadería- Unidad Administradora de Proyectos (UAP)
DOCUMENTOS PARA LA
ADQUISICIÓN DE OBRAS
Por el Método de Comparación de Precios
“Contratación de Servicios de Remodelación de la Oficina Regional La Esperanza, Intibucá del Proyecto Pro-Occidente”
CP-PIDRP-4940-002-2025
Contratante: SAG/PRO-OCCIDENTE
Emitido en: 09de Septiembre de 2025
País: Honduras
INSTRUCCIONES PARA LA PREPARACION DE LAS COTIZACIONES
1. MONEDAS DE LA OFERTA:
Las cotizaciones deben presentarse en Lempiras
2. PRESENTACIÓN DE COTIZACIÓN:
El proveedor deberá presentar su cotización de acuerdo con el formulario del Anexo B, así mismo una declaración de las especificaciones técnicas de las obras ofertadas de acuerdo con el Anexo A. El Banco exige que se apliquen y se observen sus normas de lucha contra la corrupción, que incluyen, entre otras cosas, el derecho del Banco a sancionar, inspeccionar y realizar auditorías. Para más detalles, véase el Numeral 7, “Fraude y Corrupción”. El Proveedor deberá remitir firmado y sellado como parte de su cotización, el Formulario de Declaración de Mantenimiento de la Cotización.
Las cotizaciones deberán presentarse a más tardar el día 25 de septiembre de 2025 a las 16:00 p.m. Hora oficial de la República de Honduras., a la dirección abajo descrita, las cotizaciones deberán presentarse vía email, o mediante sobres sellados, a la siguiente dirección física o electrónica.
Proceso: “CP-PIDRP-4940-002-2025 Contratación de Servicios de Remodelación de la Oficina Regional La Esperanza, Intibucá del Proyecto Pro-Occidente”.
E-mail: [email protected]
Dirección: Proyecto PRO-OCCIDENTE crédito (4936/BL-HO, 4940/BL-HO), financiado a través del Banco Interamericano de Desarrollo (BID), Oficinas del Proyecto Pro Occidente, Km 1 salida a Marcala en las Instalaciones de SAG-DICTA, La Esperanza, Intibucá, Honduras, C.A. y/o Oficinas del Proyecto Pro Occidente ubicadas en Boulevard Morazán, Colonia San Carlos, Edificio Los Castaños, 5to Piso, Tegucigalpa, Honduras, M.D.C.
3. PLAZO DE VALIDEZ DE LAS COTIZACIONES:
Las cotizaciones deberán tener una validez de Noventa (90) días calendario, contados a partir de la fecha límite de entrega de las mismas.
4. PLAZO DE SOLICITUD DE ACLARACIONES:
Las aclaraciones sobre el Documento del Proceso de Comparación de Precios deberán ser solicitadas al Contratante por escrito a la dirección indicada en la carta de solicitud de cotización, a más tardar el 25 de septiembre de 2025 a las 16:00 p.m. Hora oficial de la República de Honduras, no se recibirán solicitudes de aclaraciones fuera de este plazo.
PLAZO DE ENTREGA:
El oferente favorecido deberá sustituir la Declaración de Mantenimiento de Cotización, por una Garantía de Cumplimiento equivalente al quince por ciento (15%) del valor total del Contrato y servirá para garantizar que el contratista ejecute la obra cumpliendo con todas las condiciones estipuladas en el contrato; la cual deberá tener una vigencia de tres (3) meses después del plazo previsto para la ejecución de la obra, dicha Garantía de Cumplimiento deberá ser presentada al momento de la firma del Contrato.
Esta garantía debe ser expedida a nombre de la Secretaria de Estado en los Despachos de Agricultura y Ganadería-SAG y podrá consistir en un una garantía bancaria expedida por el sistema Bancario Nacional del país. Misma que deberá contener la cláusula Especial Obligatoria: LA PRESENTE SERA EJECUTADA POR EL VALOR TOTAL DE LA MISMA, A SIMPLE REQUERIMIENTO DEL (BENEFICIARIO) ACOMPAÑADA DE UNA RESOLUCION FIRME DE INCUMPLIMIENTO, SIN NINGUN OTRO REQUISITO. PUDIENDO REQUERIRSE EN CUALQUIER MOMENTO DENTRO DEL PLAZO DE VIGENCIA DE LA GARANTÍA.
Se puede referir al anexo D, E y F de este documento
El plazo de inicio de los servicios será de un mínimo de quince (15) días calendario a partir de la recepción del Anticipo por parte del proveedor seleccionado. Véase Anexo A, numeral 1. Lista de Obras y Plazo de Entregas requerido.
5. LUGAR DE REMODELACION
En las oficinas del Proyecto Pro-Occidente, Km 1 salida a Marcala en las Instalaciones de SAG-DICTA, La Esperanza, Intibucá, Honduras C.A.

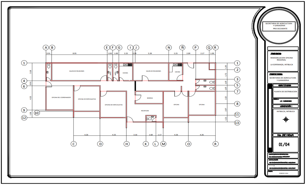
FOTOGRAFÍAS DEL EDIFICIO DEL PROYECTO PRO-OCCIDENTE
Cielo Falso en mal estado y cocina

Techo de madera y Aluzinc y piso de concreto

Tanque elevado y techo de madera y Aluzinc en entrada principal

Vista a vuelo de dron del techo
Vista Frontal del edificio
ACTIVIDADES PROYECTADAS
Se pretende realizar acciones y mejoras en:
· Cambio de Techo: Actualmente la estructura es de perlin y lamina de fibrocemento en mal estado, por lo que se desmontara toda la estructura existente incluida la lámina existente y se instalara una nueva estructura metálica de tubo estructural, canaleta y lamina Aluzinc tipo teja.
· Cambio de Piso: Actualmente los pisos de la edificación tienen ladrillo de cemento (oficinas), en mal estado y en áreas de circulación firme de concreto, se propone instalar cerámica y así uniformar toda el área de piso del edificio.
· Cambio de Cielo Falso: Se propone la sustitución del cielo falso existente de panelit, actualmente en mal estado por cielo falso de PVC, en todo el edificio.
· Mejoramiento de cierre de puertas: Reparación de molduras, contramarcos, pintura y nuevos llavines, para la reparación de todas las puertas.
· Reparaciones y mejoras en baños: Reparación de válvulas, tanques y mejoras en general de los 5 baños distribuidos en el área del edificio.
· Revisión y readecuación del sistema eléctrico: Revisión del cableado y cambio de accesorios (interruptores, tomacorrientes) se requiere colocar nuevas lámparas y tomas. En algunas zonas se deben cambiar los circuitos y se propone un solo centro de carga para todo el edificio.
· Pintura general del edificio: Resane y pintura general siguiendo los colores de línea de SAG.
· Aceras perimetrales: Se requiere construir aceras perimetrales para protección de las paredes por la humedad ya que actualmente solo existen en la parte frontal.
· Techo de tubo estructural y canaleta: Se cambiará el techo de entrada al edificio que actualmente es de madera y lamina, por estructura de tubo estructural de 4” como columnas, tubo de 2”x6” como vigas y canaleta de 2”x4” como clavadores y lamina tipo teja.
6. VISITA AL SITIO DE LA REMODELACIÓN
Para la preparación de una cotización acertada es importante que los potenciales cotizantes realicen una visita al sitio donde se realizara la Remodelación la cual será No Obligatoria en las oficinas del Proyecto Pro-Occidente, Km 1 salida a Marcala en las Instalaciones de SAG-DICTA, La Esperanza, Intibucá, Honduras C.A., la cual se realizará el día 18 de septiembre del 2025 a las 11:00 a.m.
6. FORMA DE PAGO
Se cancelará el quince por ciento (15%) de anticipo del precio del contrato y los demás pagos de acuerdo avance de obra por medio de la presentación de estimaciones de avance de obra aprobadas por el supervisor del proyecto Pro Occidente (con un mínimo de 2 a 3 estimaciones máximo). El anticipo será deducido mediante retenciones a partir del pago de la primera estimación de obra ejecutada, en la misma proporción en que fue otorgado. En la última estimación se deducirá el saldo pendiente de dicho anticipo.
El pago de anticipo se realizará previo envío de la siguiente documentación:
Para el pago de anticipo:
Previo a la presentación de Garantía Bancaria por el 100% del monto del anticipo. La vigencia de esta garantía será por el mismo plazo del contrato y concluirá con el reintegro total del anticipo.
Para el pago de estimaciones:
Estimación de obra aprobada por el supervisor del proyecto Pro Occidente. (mínimo de 2 a 3 estimaciones máximo)
Factura membretada a nombre de SAG/PRO-OCCIDENTE, con descripción de la obra ejecutada, precio unitario, total. Debidamente autorizada por la SAR.
Recibo a nombre de la Tesorería General de la República.
Registro SIAFI.
Pago de última estimación:
Para el ultimo pago se requiere la presentación de una Garantía de Calidad de obra del 5% del monto del contrato con una vigencia de un año.
Hasta un máximo de treinta (30) días, después de haber recibido la documentación antes descrita se realizará el pago.
El pago correspondiente se hará en Lempiras.
7. PRACTICAS PROHIBIDAS
7.1 El Banco exige a todos los Prestatarios (incluidos los beneficiarios de donaciones), organismos ejecutores y organismos contratantes, al igual que a todas las firmas, entidades o individuos oferentes por participar o participando en actividades financiadas por el Banco incluidos, entre otros, solicitantes, oferentes, proveedores de bienes, contratistas, consultores, miembros del personal, subcontratistas, subconsultores, proveedores de servicios y concesionarios (incluidos sus respectivos funcionarios, empleados y representantes, ya sean sus atribuciones expresas o implícitas) observar los más altos niveles éticos y denunciar al Banco12 todo acto sospechoso de constituir una Práctica Prohibida del cual tenga conocimiento o sea informado durante el proceso de selección y las negociaciones o la ejecución de un contrato. Las Prácticas Prohibidas comprenden: (i) prácticas corruptas; (ii) prácticas fraudulentas; (iii) prácticas coercitivas; (iv) prácticas colusorias y (v) prácticas obstructivas. El Banco ha establecido mecanismos para denunciar la supuesta comisión de Prácticas Prohibidas. Toda denuncia deberá ser remitida a la Oficina de Integridad Institucional (OII) del Banco para que se investigue debidamente. El Banco también ha adoptado procedimientos de sanción para la resolución de casos. Asimismo, el Banco ha celebrado acuerdos con otras instituciones financieras internacionales a fin de dar un reconocimiento recíproco a las sanciones impuestas por sus respectivos órganos sancionadores.
A efectos del cumplimiento de esta Política, el Banco define las expresiones que se indican
a continuación:
Una práctica corruptiva consiste en ofrecer, dar, recibir o solicitar, directa o indirectamente, algo de valor para influenciar indebidamente las acciones de otra parte;
Una práctica fraudulenta es cualquier acto u omisión, incluyendo la tergiversación de hechos y circunstancias, que deliberadamente o por negligencia grave, engañe, o intente engañar, a alguna parte para obtener un beneficio financiero o de otra índole o para evadir una obligación;
Una práctica coercitiva consiste en perjudicar o causar daño, o amenazar con perjudicar o causar daño, directa o indirectamente, a cualquier parte o a sus bienes para influenciar en forma indebida las acciones de una parte; y
Una práctica colusoria es un acuerdo entre dos o más partes realizado con la intención de alcanzar un propósito indebido, incluyendo influenciar en forma indebida las acciones de otra parte.
Una práctica obstructiva consiste en:
(aa) destruir, falsificar, alterar u ocultar deliberadamente evidencia significativa para la investigación o realizar declaraciones falsas ante los investigadores con el fin de impedir materialmente una investigación del Grupo del Banco sobre denuncias de una práctica corrupta, fraudulenta, coercitiva o colusoria; y/o amenazar, hostigar o intimidar a cualquier parte para impedir que divulgue su conocimiento de asuntos que son importantes para la investigación o que prosiga la investigación, o
bb) todo acto dirigido a impedir materialmente el ejercicio de inspección del Banco y los derechos de
auditoría previstos en el párrafo 1.14 (f) de abajo.
Si se determina que, de conformidad con los procedimientos de sanción del Banco, cualquier firma, entidad o individuo actuando como oferente o participando en una actividad financiada por el Banco incluidos, entre otros, solicitantes, oferentes, proveedores, contratistas, consultores, miembros del personal, subcontratistas, subconsultores, proveedores de servicios, concesionarios, Prestatarios (incluidos los Beneficiarios de donaciones), organismos ejecutores o contratantes (incluidos sus respectivos funcionarios, empleados y representantes, ya sean sus atribuciones expresas o implícitas) ha cometido una Práctica Prohibida en cualquier etapa de la adjudicación o ejecución de un contrato, el Banco podrá:
no financiar ninguna propuesta de adjudicación de un contrato para la adquisición de bienes o la contratación de obras financiadas por el Banco;
suspender los desembolsos de la operación, si se determina, en cualquier etapa, que un empleado, agencia o representante del Prestatario, el Organismo Ejecutor o el Organismo Contratante ha cometido una Práctica Prohibida;
declarar una contratación no elegible para financiamiento del Banco y cancelar y/o acelerar el pago de una parte del préstamo o de la donación relacionada inequívocamente con un contrato, cuando exista evidencia de que el representante del Prestatario, o Beneficiario de una donación, no ha tomado las medidas correctivas adecuadas (lo que incluye, entre otras cosas, la notificación adecuada al Banco tras tener conocimiento de la comisión de la Práctica Prohibida) en un plazo que el Banco considere razonable;
emitir una amonestación a la firma, entidad o individuo en el formato de una carta formal de censura por su conducta;
declarar a una firma, entidad o individuo inelegible, en forma permanente o por determinado período de tiempo, para que (i) se le adjudiquen o participe en actividades financiadas por el Banco, y (ii) sea designado13 subconsultor, subcontratista o proveedor de bienes o servicios por otra firma elegible a la que se adjudique un contrato para ejecutar actividades financiadas por el Banco;
remitir el tema a las autoridades pertinentes encargadas de hacer cumplir las leyes; y/o
imponer otras sanciones que considere apropiadas bajo las circunstancias del caso, incluida la imposición de multas que representen para el Banco un reembolso de los costos vinculados con las investigaciones y actuaciones. Dichas sanciones podrán ser impuestas en forma adicional o en sustitución de las sanciones arriba referidas.
Lo dispuesto en los incisos (i) y (ii) del párrafo 1.14 (b) se aplicará también en casos en los que las partes hayan sido temporalmente declaradas inelegibles para la adjudicación de nuevos contratos en espera de que se adopte una decisión definitiva en un proceso de sanción, o cualquier otra resolución.
La imposición de cualquier medida que sea tomada por el Banco de conformidad con las provisiones referidas anteriormente será de carácter público
Asimismo, cualquier firma, entidad o individuo actuando como oferente o participando en una actividad financiada por el Banco, incluidos, entre otros, solicitantes, oferentes, proveedores de bienes, contratistas, consultores, miembros del personal, subcontratistas, subconsultores, proveedores de servicios, concesionarios, Prestatarios (incluidos los beneficiarios de donaciones), organismos ejecutores o contratantes (incluidos sus respectivos funcionarios, empleados y representantes, ya sean sus atribuciones expresas o implícitas) podrá verse sujeto a sanción de conformidad con lo dispuesto en convenios suscritos por el Banco con otra institución financiera internacional concernientes al reconocimiento recíproco de decisiones de inhabilitación. A efectos de lo dispuesto en el presente párrafo, el término “sanción” incluye toda inhabilitación permanente, imposición de condiciones para la participación en futuros contratos o adopción pública de medidas en respuesta a una contravención del marco vigente de una institución financiera internacional aplicable a la resolución de denuncias de comisión de Prácticas Prohibidas.
El Banco requiere que en los documentos de licitación y los contratos financiados con un préstamo o donación del Banco se incluya una disposición que exija que los solicitantes, oferentes, proveedores de bienes y sus representantes, contratistas, consultores, miembros del personal, subcontratistas subconsultores, proveedores de servicios y concesionarios permitan al Banco revisar cualesquiera cuentas, registros y otros documentos relacionados con la presentación de propuestas y con el cumplimiento del contrato y someterlos a una auditoría por auditores designados por el Banco. Bajo esta política, todo solicitante, oferente, proveedor de bienes y su representante, contratista, consultor, miembro del personal, subcontratista, subconsultor, proveedor de servicios y concesionario deberá prestar plena asistencia al Banco en su investigación. El Banco requerirá asimismo que se incluya en contratos financiados con un préstamo o donación del Banco una disposición que obligue a solicitantes, oferentes, proveedores de bienes y sus representantes, contratistas, consultores, miembros del personal, subcontratistas, subconsultores, proveedores de servicios y concesionarios a: (i) conservar todos los documentos y registros relacionados con actividades financiadas por el Banco por un período de siete (7) años luego de terminado el trabajo contemplado en el respectivo contrato; (ii) entregar cualquier documento necesario para la investigación de denuncias de comisión de Prácticas Prohibidas y hacer que empleados o agentes de los solicitantes, oferentes, proveedores de bienes y sus representantes, contratistas, consultores, subcontratistas, subconsultores, proveedores de servicios y concesionarios que tengan conocimiento de las actividades financiadas por el Banco estén disponibles para responder a las consultas relacionadas con la investigación provenientes de personal del Banco o de cualquier investigador, agente, auditor o consultor apropiadamente designado. Si el solicitante, oferente, proveedor de servicios y su representante, contratista, consultor, miembro del personal, subcontratista, subconsultor, proveedor de servicios o concesionario se niega a cooperar o incumple el requerimiento del Banco, o de cualquier otra forma obstaculiza la investigación por parte del Banco, el Banco, bajo su sola discreción, podrá tomar medidas apropiadas contra el solicitante, oferente, proveedor de bienes y su representante, contratista, consultor, miembro del personal, subcontratista, subconsultor, proveedor de servicios o concesionario.
El Banco exigirá que, cuando un Prestatario adquiera bienes, obras o servicios distintos de servicios de consultoría directamente de una agencia especializada, de conformidad con lo establecido en el párrafo 3.9, en el marco de un acuerdo entre el Prestatario y dicha agencia especializada, todas las disposiciones contempladas en el párrafo 1.14 relativas a sanciones y Prácticas Prohibidas se apliquen íntegramente a los solicitantes, oferentes, proveedores de bienes y sus representantes, contratistas, consultores, miembros del personal, subcontratistas, subconsultores, proveedores de servicios, concesionarios (incluidos sus respectivos funcionarios, empleados y representantes, ya sean sus atribuciones expresas o implícitas), o cualquier otra entidad que haya suscrito contratos con dicha agencia especializada para la provisión de bienes, obras o servicios distintos de servicios de consultoría en conexión con actividades financiadas por el Banco. El Banco se reserva el derecho de obligar al Prestatario a que se acoja a recursos tales como la suspensión o la rescisión. Las agencias especializadas deberán consultar la lista de firmas e individuos declarados inelegibles de forma temporal o permanente por el Banco. En caso de que una agencia especializada suscriba un contrato o una orden de compra con una firma o individuo declarado inelegible de forma temporal o permanente por el Banco, el Banco no financiará los gastos conexos y se acogerá a otras medidas que considere convenientes.
1.15 Con el acuerdo específico del Banco, un Prestatario podrá incluir en los formularios de licitación para contratos de gran cuantía, financiados por el Banco, la declaratoria jurada del oferente de observar las leyes del país contra Prácticas Prohibidas (incluidos sobornos), cuando compita o ejecute un contrato, conforme éstas hayan sido incluidas en los documentos de licitación. El Banco aceptará la introducción de tal declaratoria a petición del país del Prestatario, siempre que los acuerdos que rijan esa declaratoria sean satisfactorios al Banco.
8. CRITERIOS DE EVALUACION
Los precios cotizados para cada actividad/Ítem deberán corresponder al cien por ciento 100% de las cantidades especificadas para esta actividad.
El Comprador adjudicara por el Lote Completo al Contratista si este, cumpliendo con los Criterios de Evaluación y las Especificaciones Técnicas requeridas, ofrece los precios más bajos evaluados en su cotización para el Lote Completo.
El Comprador adjudicará el Contrato al contratista cuya cotización haya sido determinada como la cotización evaluada más baja por el Lote Completo y que cumple sustancialmente con los requisitos del Documento de Comparación de Precios.
Los Oferentes deberán presentar los siguientes documentos adicionales con su Cotización:
DOCUMENTOS LEGALES
1. Fotocopia Autenticada de la Escritura Pública de Constitución de Sociedad, con sus reformas si las hubiere debidamente inscritas en el Instituto de la Propiedad Inmueble y Mercantil.
2. Fotocopia Autenticada del Poder de Representación y sus modificaciones si las hubiere debidamente inscrito en el Instituto de la Propiedad.
3. Declaración de Mantenimiento de Cotización (ver Anexo C del presente documento).
4. Permiso de Operación vigente, extendido por la municipalidad de su localidad;
5. Constancia vigente de estar inscrito y encontrarse solvente, del Colegio de Ingenieros Civiles-CICH o Colegio de Arquitectos-CAH, según el caso. - No Aplica para Maestros de Obra.
Los siguientes documentos deberán ser presentados únicamente por el cotizante adjudicado:
Constancia vigente de estar inscrito en la Oficina Normativa de Contratación y Adquisiciones del Estado (ONCAE).
Fotocopia Autenticada del Documento Nacional de Identificación Nacional (DNI) del Representante Legal.
Fotocopia Autenticada del Registro Tributario Nacional (RTN) del Representante Legal y de la Empresa.
Constancia de solvencia Servicio de Administración de Rentas (SAR) vigente.
Constancia de solvencia extendida por la Procuraduría General de la República, a favor de la sociedad y su representante legal de no haber sido objeto de resolución firme de cualquier contrato celebrado con la administración, vigente a la fecha de apertura de las ofertas de la presente licitación.
DOCUMENTOS TÉCNICOS
El oferente deberá presentar la siguiente información que permita analizar su idoneidad técnica:
1. Al menos tres (03) o más Constancias que acrediten el cumplimiento de contratos en proyectos privados y/o con el Estado de Honduras de igual o mayor valor económico. (o finiquitos o actas de cierre)
2. Nómina del personal técnico asignado para la dirección y ejecución de la obra.
3. Documentos que acrediten la disponibilidad de equipo y maquinaria que se emplearan en la obra.
DOCUMENTOS FINANCIEROS
a) Referencias bancarias actualizadas, constancias de créditos abiertos otorgados por instituciones bancarias, nacionales o extranjeras, créditos comerciales.
b) Autorización para que la Secretaria de Estado en los Despachos de Agricultura y Ganadería-SAG pueda verificar la documentación presentada con los emisores.
El máximo porcentaje en que las cantidades podrán ser aumentadas o disminuidas es:
Artículo o Ítem No. | Descripción | Cantidad | Maximo Aumento | Maximo Reducción |
1 | Contratación de Servicios de Remodelación de la Oficina Regional La Esperanza, Intibucá del Proyecto Pro-Occidente | 1 Global | 10% | N/A |
ANEXO A
Se solicita que el oferente llene los siguientes cuadros (I y 2), indicando fecha de entrega y cumplimiento de las especificaciones técnicas solicitadas respectivamente.
- LISTA DE OBRAS Y PLAN DE ENTREGA
NO. | LUGAR DE DESTINO Y ENTREGA DEL SERVICIO | DESCRIPCIÓN DEL SERVICIO | UNIDAD FÍSICA | CANTIDAD | FECHA DE ENTREGA | FECHA DE ENTREGA OFERTADA |
1 | La Esperanza, Intibucá | Desmontajes y Demoliciones | GLOBAL | 1.00 | Octubre/2025 |
|
2 | La Esperanza, Intibucá | Techos y Cielo Falso | GLOBAL | 1.00 | Octubre/2025 |
|
3 | La Esperanza, Intibucá | Instalaciones Eléctricas | GLOBAL | 1.00 | Noviembre/2025 |
|
4 | La Esperanza, Intibucá | Pisos Y Aceras | GLOBAL | 1.00 | Noviembre/2025 |
|
5 | La Esperanza, Intibucá | Instalaciones Hidrosanitarias | GLOBAL | 1.00 | Diciembre/2025 |
|
6 | La Esperanza, Intibucá | Puertas y ventanas | GLOBAL | 1.00 | Diciembre/2025 |
|
7 | La Esperanza, Intibucá | Pintura y acabados | GLOBAL | 1.00 | Enero/2026 |
|
8 | La Esperanza, Intibucá | Limpieza final | GLOBAL | 1.00 | Enero/2026 |
|
- ESPECIFICACIONES TECNICAS
No. Ítem | DESCRIPCION DEL SERVICIO | UNIDAD | CANTIDAD | CUMPLE | NO CUMPLE | OBSERVACIONES |
| PRELIMINARES | ||||||
1 | DESMONTAJE DE INSTALACIONES ELECTRICAS | DIA | 5.00 | |||
2 | DESMONTAJE DE LAMINA DE TECHO EN ESTRUCTURA EXISTENTE | M2 | 352.88 | |||
3 | DESMONTAJE DE CIELO FALSO | M2 | 262.50 | |||
4 | DEMOLICION DE PISO MOSAICO | M2 | 262.50 | |||
5 | DEMOLICION DE PARED DE CONCRETO | M2 | 9.84 | |||
6 | DEMOLICION DE PARED DE TABLA YESO | M2 | 58.92 | |||
| TECHOS Y CIELO FALSO | |||||
7 | SOLERA DE CIERRE DE 15X15 CM, 4#3 y #2@ 20 CM | M.L. | 83.33 | |||
8 | ENTABICADO DE LADRILLO REAFON DE 15 CM (REPELLO/PULIDO) | M.L. | 83.33 | |||
9 | VIGA AEREA DE METALICA DE TUBO ESTRUCTURAL DE 4" | UNID | 9.00 | |||
10 | SUM. E INST. DE TECHO DE CANALETA DE 4" GALVANIZADA | M2 | 352.88 | |||
11 | CAPOTE PARA LAMINA DE ALUZINC | M.L. | 28.00 | |||
12 | SUMIN. E INST. DE CIELO FALSO DE PVC | M2 | 262.50 | |||
| INSTALACIONES ELECTRICAS | ||||||
13 | CIRCUITO DE ILUMINACION DE 10 AMP. | M.L. | 130.00 | |||
14 | CIRCUITO DE FUERZA DE 20 AMP. | M.L. | 90.00 | |||
15 | SUM. E INST. DE INTERRUPTOR SENCILLO | UNID | 17.00 | |||
16 | SUM. E INST. DE INTERRUPTOR DOBLE | UNID | 4.00 | |||
17 | SUM. E INST. DE TOMACORRIENTE DOBLE | UNID | 25.00 | |||
18 | SUM. E INST. DE LAMPARA EMPOTRABLE LED DE 2 TUBOS | UNID | 26.00 | |||
19 | SUM. E INST. DE LAMPARA EMPOTRABLE LED DE 1X48"X32W | UNID | 10.00 | |||
20 | SUM. E INST. DE REFLECTOR DOBLE DE 100 W | UNID | 3.00 | |||
21 | SUM. E INST. DE CENTRO DE CARGA DE 24 ESPACIOS | UNID | 1.00 | |||
22 | SUM. E INST. DE MUFA DE 2" | UNID | 1.00 | |||
23 | SUM. E INST. DE ATERRIZAJE DE CENTRO DE CARGA | UNID | 1.00 | |||
No. Ítem | DESCRIPCION DEL SERVICIO | UNIDAD | CANTIDAD | CUMPLE | NO CUMPLE | OBSERVACIONES |
| PISOS Y ACERAS | ||||||
24 | FIRME DE CONCRETO | M2 | 262.50 | |||
25 | CERAMICA DE PISO DE 30X30 CM | M2 | 262.50 | |||
26 | MOLDURA DE CERAMICA DE 7X30 CM | M.L. | 220.00 | |||
27 | ACERA PERIMETRAL E= 10 CM Y ANCHO 1.00 M | M2 | 46.00 | |||
| MUEBLE DE COCINA, PUERTAS Y VENTANAS | ||||||
28 | REPARACION DE PUERTAS | UNID | 6.00 | |||
29 | VENTANAS DE PVC | M2 | 33.72 | |||
30 | MUEBLE DE COCINA INCLUYE LAVATRASTOS | UNID | 1.00 | |||
| PINTURA Y ACABADOS | ||||||
31 | PINTURA DE PAREDES | M2 | 1250.00 | |||
32 | PINTURA DE ELEMENTOS DE CONCRETO | M.L. | 200.00 | |||
33 | TALLADO DE BOQUETES DE VENTANAS | M.L. | 76.43 | |||
| INSTALACIONES HIDROSANITARIAS | ||||||
34 | REPARACION DE SERVICIOS SANITARIOS | UNID | 5.00 | |||
35 | REPARACION DE LAVAMANOS | UNID | 5.00 | |||
| LIMPIEZA FINAL | ||||||
36 | LIMPIEZA DE AREAS INTERNAS | M2 | 262.50 | |||
37 | LIMPIEZA DE AREAS EXTERNAS | M3 | 20.00 | |||
ESPECIFICACIONES DE ACTIVIDADES
DESMONTAJE DE LAMINA DE TECHO EN ESTRUCTURA EXISTENTE
UNIDAD: M2
DESCRIPCION DE LA ACTIVIDAD A REALIZAR
Este trabajo consistirá en el desmontaje de láminas de fibrocemento, Aluzinc y/o zinc. Por medio de la utilización de mano de obra no calificada (peón y ayudante) y herramienta menor.
CONSIDERACIONES DEL CALCULO DE ANALISIS DE COSTO
Se considera el acarreo del material de desperdicio, producto del desmontaje de la lámina. Requiere mano de obra no calificada.
CRITERIOS DE MEDICION Y PAGO
MEDICION: La cantidad a pagarse por desmontaje de láminas de techo será el número de metros cuadrados medidos en la obra de trabajos ordenados, ejecutados y aceptados por el supervisor de obra. PAGO: Estos precios y pagos constituirán la compensación total por el suministro de mano de obra, equipo, herramientas y operaciones conexas en la ejecución de los trabajos descritos en esta especificación.
LAMINA DE CIELO FALSO DESMONTAJE E INSTALACION
UNIDAD: M2
DESCRIPCION DE LA ACTIVIDAD A REALIZAR
Este trabajo consistirá en retirar el cielo falso existente y remplazarlo por cielo falso de PVC, así como revisar el sistema eléctrico (circuito de iluminación) y conectar el nuevo sistema de iluminación con el centro de carga.
CONSIDERACIONES DEL CALCULO DE ANALISIS DE COSTO
Para el cálculo se consideran los materiales, mano de obra y herramientas necesarias para la realización de esta actividad.
CRITERIOS DE MEDICION Y PAGO
MEDICION: Se pagará por metro cuadrado de desmontaje e instalación de circuitos eléctricos, debidamente colocados y aprobados por la supervisión.
TECHO DE CANALETA DE 2”X4” GALVANIZADAS Y LAMINA DE ALUZINC TIPO TEJA
UNIDAD: M2
DESCRIPCION DE LA ACTIVIDAD A REALIZAR
Este trabajo consistirá en la construcción de un techo de acuerdo a planos, construido con vigas metálicas de tubo estructural de 4”x 4” con clavadores de canaleta de 4" de ancho y cubierta de láminas esmaltada tipo teja cal 26 de 0.43mm de espesor, incluyendo el capote esmaltado para la cumbrera. Pendiente de 18% - La canaleta se colocará de acuerdo a detalle especificado en los planos en solera sobre culatas empotrada y amarrada en la solera con la cual se fijará las vigas y la canaleta.
CONSIDERACIONES DEL CALCULO DE ANALISIS DE COSTO
Se consideran todos los rendimientos adaptados para el techo del plano con vigas metalicas y canaleta de 4" y lámina esmaltada tipo teja, se considera un área plana, para el cálculo. Se incluye el suministro e instalación de la canaleta, lámina, capote, tapón, tornillos auto taladrantes, varilla de 3/8" para arriostre, pintura anticorrosiva y de aceite a 2 manos, diluyente y el alquiler de una soldadora para realizar el techado de acuerdo a planos. Se incluye un porcentaje de herramienta menor que cubre el andamiaje y otros necesario para la instalación y pintado de las canaletas y cubierta.
CRITERIOS DE MEDICION Y PAGO
La cantidad a pagarse por techo de tijeras y canaleta y lámina esmaltada tipo teja será el número de metros cuadrados (Área medida de acuerdo a la proyección horizontal del techo) medidos en la obra, de trabajos ordenados, ejecutados y aceptados por el supervisor de obra. PAGO: Estos precios y pagos constituirán la compensación total por suministro de los materiales descritos, así como por mano de obra, equipo, herramientas, materiales y operaciones conexas en la ejecución de los trabajos descritos en esta especificación.
VIGA METALICA CON TUBO ESTRUCTURAL DE 4”X4” CON PLACA
UNIDAD: UNIDAD
DESCRIPCION DE LA ACTIVIDAD A REALIZAR
Este trabajo consistirá en la construcción de vigas metálicas de acuerdo a planos, de tubo estructural de 4”x 4” y unidas con placas empotradas y amarrada en la solera con la cual se fijará las vigas.
CONSIDERACIONES DEL CALCULO DE ANALISIS DE COSTO
Se consideran todos los rendimientos adaptados para cada viga de acuerdo a planos. Se incluye un porcentaje de herramienta menor que cubre el andamiaje y otros necesario para la instalación y pintado de las vigas.
CRITERIOS DE MEDICION Y PAGO
La cantidad a pagarse por viga metálica construida e instalada conforme a planos medidos en la obra, de trabajos ordenados, ejecutados y aceptados por el supervisor de obra. PAGO: Estos precios y pagos constituirán la compensación total por suministro de los materiales descritos, así como por mano de obra, equipo, herramientas, materiales y operaciones conexas en la ejecución de los trabajos descritos en esta especificación.
ACERA DE CONCRETO e= 10 cm, concreto 1:2:2
UNIDAD: M2
DESCRIPCION DE LA ACTIVIDAD A REALIZAR
Este trabajo consistirá en la construcción de una cera de concreto 1:2:2, de 10 cm y 1 metro de ancho, apoyada en una cimentación de mampostería de 20x30cm, en todo el perímetro, para autorizar el fundido del piso, la capa de material selecto deberá estar debidamente compactada y el supervisor deberá verificar los niveles de piso de acuerdo a lo establecido en planos. El concreto deberá fabricarse sobre una superficie impermeable y limpia, haciéndose la mezcla en seco hasta lograr un aspecto uniforme, agregando después el agua en pequeñas cantidades hasta obtener un producto homogéneo y cuidando que durante la operación no se mezcle tierra o impureza alguna, deberá tener la humedad estipulada en la proporción propuesta, que permita una consistencia plástica y trabajable a fin de llenar la sección excavada sin dejar cavidades interiores. Todo el hormigón será colocado en horas de día, previo a la colocación del hormigón el área se dividirá en pastillas a cada metro. Los métodos de colocación y compactación del hormigón serán tales como para obtener una masa uniforme y densa, evitando la segregación de materiales y cuidando que la fundición se haga en forma intercalada (tipo damero). El hormigón será colocado dentro de los treinta minutos siguientes de su mezclado. Se mantendrá continuamente húmeda la superficie del concreto, durante los siete días posteriores al vaciado. El acabado final será un codaleado. El piso de concreto de 10 cm.
CONSIDERACIONES DEL CALCULO DE ANALISIS DE COSTO
La proporción de concreto a utilizar será de 1:2:2.
CRITERIOS DE MEDICION Y PAGO
MEDICION: La cantidad a pagarse por acera de concreto, será el número de metros cuadrados, medidos en la obra, de trabajos ordenados, ejecutados y aceptados por el supervisor de obra. PAGO: Estos precios y pagos constituirán la compensación total por suministro de materiales, mezclado, transporte, colocación, acabado y curado de piso, así como de mano de obra, equipo, herramientas, materiales y operaciones conexas en la ejecución de los trabajos descritos en esta especificación.
PINTURA DE ACEITE
UNIDAD: M2
DESCRIPCION DE LA ACTIVIDAD A REALIZAR
Este trabajo consistirá en la aplicación de pintura de aceite en paredes. Antes de su utilización en obra el Contratista deberá suministrar los materiales necesarios para la aplicación de pintura en los sitios y de las calidades y colores indicados debidamente aprobados por el supervisor. El Contratista deberá seguir las instrucciones del fabricante de la pintura en cuanto a mezclas, cuidados y aplicación de esta. No se deberá permitir mezclas entre diferentes marcas de pintura. Todas las superficies deben estar limpias, secas y libres de todo tipo de polvo, aceite y partículas finas sueltas, eflorescencia, hongos, contaminantes químicos etc. Se colocarán como mínimo dos manos de pintura sobre cada superficie, aplicadas con rodillo, debiendo las superficies presentar absoluta uniformidad sin trazos ni manchas.
CONSIDERACIONES DEL CALCULO DE ANALISIS DE COSTO
Se considera el rendimiento por galón de pintura aplicado a dos manos de 15 m2 de superficie. La pintura se aplicará con rodillo, en áreas previamente lijadas. Se considera la dilución de la pintura con diluyente en una proporción 1:4, por cada lata de pintura de aceite un cuarto de galón de diluyente. La mano de obra está considerada para alturas de hasta 4.00 m.
CRITERIOS DE MEDICION Y PAGO
MEDICION: La cantidad a pagarse por pintura de aceite exterior será en número de metros cuadrados medidos en la obra, ordenados, ejecutados y aceptados por el supervisor de obra. PAGO: Estos precios y pagos constituirán la compensación total por suministro de materiales, mezclado, trasporte, colocación y acabado de la pintura, así como por mano de obra, equipo, herramientas, materiales y operaciones conexas en la ejecución de los trabajos descritos en toda esta especificación.
FIRME DE CONCRETO e= 5.0 cm de espesor
UNIDAD: M2
DESCRIPCION DE LA ACTIVIDAD A REALIZAR
Este trabajo consistirá en la construcción de un firme de Concreto de 5 CMS con proporción 1:2:2. - Para autorizar el fundido del firme la capa de material selecto deberá estar debidamente compactado y el Supervisor deberá verificar los niveles de acuerdo a lo establecido en planos. El concreto debe fabricarse sobre una superficie impermeable y limpia, haciéndose la mezcla en seco hasta lograr un aspecto uniforme, agregando después el agua en pequeñas cantidades hasta obtener un producto homogéneo y cuidando que durante la operación no se mezcle tierra ni impureza alguna, deberá tener la humedad estipulada en la proporción propuesta, que permita una consistencia plástica y trabajable a fin de llenar la sección excavada sin dejar cavidades interiores.
CONSIDERACIONES DEL CALCULO DE ANALISIS DE COSTO
La proporción de concreto a utilizar será de 1:2:2 considerando por cada m3 un promedio de: 9.835 bolsas de cemento, 0.552 M3 de arena y grava y 0.239 m3 de agua incluyendo un 25% adicional para el curado del concreto durante el proceso de fraguado del cemento.
CRITERIOS DE MEDICION Y PAGO
MEDICIÓN: La cantidad a pagarse por firme de concreto será el número de metros cuadrados medidos en la obra, de trabajos ordenados, ejecutados y aceptados por el supervisor de obra. PAGO: Estos precios y pagos constituirán la compensación total por suministro de materiales, mezclado, transporte, colocación, acabado y curado de piso así como por mano de obra, equipo, herramientas, materiales y operaciones conexas en la ejecución de los trabajos descritos en esta especificación.
PISO DE CERAMICA DE 30 X 30 CM
UNIDAD: M2
DESCRIPCION DE LA ACTIVIDAD A REALIZAR
Este trabajo consistirá en la colocación de cerámica de 30 x 30 cm en piso. Para autorizar la colocación de la cerámica sobre el firme de concreto, el supervisor deberá verificar los niveles de acuerdo a lo establecido en planos. Para pegar las piezas de cerámica al piso se usará mortero arena/cemento en proporción 1:4 en capas de espesor variable entre 1.5 y 2.0 cm, teniendo la precaución de humedecer las superficies de contacto y tener inmersas en agua a las piezas al menos 24 horas antes de su colocación. El mortero deberá mezclarse en bateas especiales preferiblemente de madera, para que se consiga una mezcla homogénea y libre de impurezas. El mortero será colocado dentro de los 30 minutos siguientes de su mezclado y en ningún caso se deberá permitir que el mortero seco se mezcle nuevamente y sea utilizado en la obra. Se instalará primero una línea maestra que guiará la colocación de toda el área, manteniendo alineaciones en las piezas de cerámica totalmente rectas, utilizándose separadores especiales de grosor aprobado por el supervisor. Loa ajustes en los bordes, aristas e intersecciones se ejecutaran con piezas cortadas, pulidas y limadas, para luego fraguar las juntas con una mezcla cemento colorante prefabricado (Groutin) acorde al color de la cerámica y en proporciones recomendadas por el fabricante de la arca seleccionada.
CONSIDERACIONES DEL CALCULO DE ANALISIS DE COSTO
La cerámica en piso se pegará utilizando mortero de cemento arena de dosificación 1:4 considerando para cada m3 un promedio de 8.341 bolsas de cemento, 1.179 m3 de arena, 0.304 m3 de agua. Se consideran separadores plásticos y cemento con colorante prefabricado para el proceso de fraguado de la liga superior. Se considera un desperdicio en la cerámica del 10% ocasionado por cortes y piezas a fabricar.
CRITERIOS DE MEDICION Y PAGO
MEDICION: La cantidad a pagarse por cerámica de piso será el número de metros cuadrados medidos en la obra, de trabajos ordenados, ejecutados y aceptados por el supervisor de obra. PAGO: Estos precios y pagos constituirán la compensación total por suministro de materiales, transporte, colocación y acabado de la cerámica en piso así como por mano de obra, equipo, herramientas, materiales y operaciones conexas en la ejecución de los trabajos descritos en toda esta especificación.
MOLDURA PARA CERAMICA DE PISO DE 30 X7 CM
UNIDAD: ML
DESCRIPCION DE LA ACTIVIDAD A REALIZAR
Este trabajo consistirá en la colocación de cerámica como moldura de piso de 10 cm de ancho. Para autorizar la colocación de la moldura, el supervisor deberá verificar lo establecido en planos. Para pegar las piezas de cerámica se usará mortero arena/cemento en proporción 1:4 en capas de espesor variable entre 1.5 y 2.0 cm, teniendo la precaución de humedecer las superficies de contacto y tener inmersas en agua a las piezas al menos 24 horas antes de su colocación. El mortero deberá mezclarse en bateas especiales preferiblemente de madera, para que se consiga una mezcla homogénea y libre de impurezas. El mortero será colocado dentro de los 30 minutos siguientes de su mezclado y en ningún caso se deberá permitir que el mortero seco se mezcle nuevamente y sea utilizado en la obra. Se instalará primero una línea maestra que guiará la colocación de toda el área, manteniendo alineaciones en las piezas de cerámica totalmente rectas, utilizándose separadores especiales de grosor aprobado por el supervisor. Loa ajustes en los bordes, aristas e intersecciones se ejecutaran con piezas cortadas, pulidas y limadas, para luego fraguar las juntas con una mezcla cemento colorante prefabricado (Groutin) acorde al color de la cerámica y en proporciones recomendadas por el fabricante de la arca seleccionada.
CONSIDERACIONES DEL CALCULO DE ANALISIS DE COSTO
La moldura en piso se pegará utilizando mortero de cemento arena de dosificación 1:4 considerando para cada m3 un promedio de 8.341 bolsas de cemento, 1.179 m3 de arena, 0.304 m3 de agua. Se consideran separadores plásticos y cemento con colorante prefabricado para el proceso de fraguado de la liga superior. Se considera un desperdicio en la cerámica del 10% ocasionado por cortes y piezas a fabricar.
CRITERIOS DE MEDICION Y PAGO
MEDICION: La cantidad a pagarse por cerámica de piso será el número de metros lineales medidos en la obra, de trabajos ordenados, ejecutados y aceptados por el supervisor de obra. PAGO: Estos precios y pagos constituirán la compensación total por suministro de materiales, transporte, colocación y acabado de la moldura en piso así como por mano de obra, equipo, herramientas, materiales y operaciones conexas en la ejecución de los trabajos descritos en toda esta especificación.
REPARACION DE SERVICIOS SANITARIOS Y LAVAMANOS
UNIDAD: UNIDAD
DESCRIPCION DE LA ACTIVIDAD A REALIZAR:
Este trabajo consistirá en la reparación de servicios sanitarios y lavamanos existentes, incluye el cambio de los accesorios completos, tapaderas y sentaderas en el caso de servicios sanitarios y llaves en el caso de lavamanos, también el cambio de válvulas de control y tubos de abasto. Los accesorios de servicios sanitarios y lavamanos serán de porcelana con tanque y todos sus accesorios para plomería, preferiblemente de la marca American Standard color blanco, o similar debidamente aprobado por la Supervisión.
CONSIDERACIONES DEL CALCULO DE ANALISIS DE COSTO
Se considera el rendimiento por mano de obra calificada de fontanero 1 JDR por mueble sanitario
CRITERIOS DE MEDICION Y PAGO
La cantidad a pagarse es por mueble reparado y en pleno funcionamiento aprobado por el supervisor.
SOLERA DE CIERRE DE 15X15 CM, 4#3 y #2 @ 20 CM
UNIDAD: ML
DESCRIPCION DE LA ACTIVIDAD A REALIZAR
La actividad incluye el encofrado, armado, fundido, desencofrado y curado de soleras de concreto de 15 x 15 cm. armadas con 4 varillas #3 longitudinal y anillos #2 a cada 20 cm. El concreto 1:2:4 debe fabricarse sobre una superficie impermeable y limpia, haciéndose la mezcla en seco hasta lograr un aspecto uniforme, agregando después el agua en pequeñas cantidades hasta obtener un producto homogéneo y cuidando que durante la operación no se mezcle tierra ni impureza alguna, deberá tener la humedad mínima que permita una consistencia plástica y trabajable a fin de llenar los encofrados sin dejar cavidades interiores. Se cuidará de mantener continuamente húmeda la superficie del concreto durante los siete (7) días posteriores al vaciado. Todo el hormigón será colocado en horas del día, La colocación durante la noche se podrá realizar sólo con autorización por escrito del Supervisor y siempre que el Contratista provea por su cuenta un sistema adecuado de iluminación. Los métodos de colocación y compactación del hormigón serán tales como para obtener una masa uniforme y densa, evitando la segregación de materiales y el desplazamiento de la armadura. El hormigón será colocado dentro de los 30 minutos siguientes de su mezclado. El acabado final de la estructura consistirá en rellenar huecos, remover áreas sobresalientes o manchadas y reparar cualquier zona de panales u otros desperfectos que haya en la superficie. El acero de refuerzo se limpiará de toda suciedad y óxido no adherente. Las varillas se doblarán en frío, ajustándolas a los planos sin errores mayores de (1 cm.). Ninguna varilla deberá doblarse después de ser parcialmente embebida en concreto a menos que se indique o se autorice. Las varillas serán fijadas entre sí con alambre de amarre de modo que no puedan desplazarse durante el fundido y que el concreto pueda envolverlas completamente. En ningún caso el traslape será menor de 12" por barra. Los empalmes de cada barra se distanciarán con respecto a la de otras barras de modo que sus centros queden a más de 24 diámetros a lo largo de la pieza. Las soleras deberán ser construidas según las líneas y secciones transversales indicados en los plano.
CONSIDERACIONES DEL CALCULO DE ANALISIS DE COSTO
Se considera un concreto con proporción 1:2:4, El volumen de agua incluye un 25% adicional que deberá ser utilizado en el curado. Se incluye un 5% de desperdicio en el acero de refuerzo para cubrir lo que se pierde en el proceso de construcción, así como los traslapes que como máximo serán 40 veces el diámetro, fijados con alambre de amarre de una longitud promedio de 20 cm. por amarre. Se considera encofrado en las caras laterales con sus respectivos elementos de fijación, utilizando la madera un mínimo de 4 veces. La mano de obra está considerada hasta una altura de 3.2 mts.
CRITERIOS DE MEDICION Y PAGO
MEDICION: Se medirá por Longitud. La cantidad a pagarse será el número de metros lineales medidos en la obra, de trabajos ordenados, ejecutados y aceptados por el supervisor de obra. PAGO: Se pagará al precio del contrato estipulado en el ítem correspondiente, dichos precios y pagos constituirán la compensación total por suministro de materiales, mezclado, transporte, colocación, acabado y curado de la solera así como por mano de obra, equipo, herramientas, materiales y operaciones conexas en la ejecución de los trabajos descritos en toda la especificación.
CIRCUITO DE ILUMINACION HASTA DE 15 Amp. PVC eléctrico de ¾”
UNIDAD: ML
DESCRIPCION DE LA ACTIVIDAD A REALIZAR
Este trabajo consistirá en el ranurado de ser necesario, instalación de PVC eléctrico de 1/2” cedula 40, cableado con dos cables #12. Durante el proceso de construcción se debe tapar los orificios de la ducteria para evitar el ingreso de cuerpos extraños, utilizando curvas, el cableado debe ser continuo sin empalmes, de ser necesario empalmar cables se debe colocar una caja octogonal. Dejando las condiciones necesarias para la colocación de los accesorios en las salidas del circuito.
CONSIDERACIONES DEL CALCULO DE ANALISIS DE COSTO
Se considera los materiales y mano de obra necesarias, para la ejecución de esta actividad, asi como el 6% de desperdicio en los cables.
CRITERIOS DE MEDICION Y PAGO
MEDICION: Se medirá por metro lineal. La cantidad a pagarse será el número de metros lineales por circuito medidos en obra, de trabajos ordenados, ejecutados y aceptados por el supervisor de obra. PAGO: se pagará al precio del contrato estipulado en el Ítem correspondiente, dichos precios y pagos constituirán la compensación total por el suministro de materiales, transporte, colocación, así como por mano de obra, equipo, herramientas, materiales y operaciones conexas en la ejecución de los trabajos descritos en toda la especificación.
ENTABICADO DE LADRILLO RAFON DE 15 CM, (REPELLO Y PULIDO)
UNIDAD: ML
DESCRIPCION DE LA ACTIVIDAD A REALIZAR
Este trabajo consistirá en la construcción de un entabicado hasta una altura de 15 CMS, conformada por ladrillo rafón y ligado con mortero de cemento en una proporción 1:4, repellado y pulido. El mortero deberá mezclarse en bateas especiales, preferiblemente de madera, para que se consiga una mezcla homogénea y libre de impurezas El mortero deberá colocarse en la base y en los lados de los ladrillos en un espesor no menor de 1.6 cm- Toda el entabicado deberá ser construida a plomo de acuerdo con las dimensiones y líneas generales indicadas en los planos, uniendo los ladrillos con el mortero. Ningún mortero seco podrá ser mezclado nuevamente y utilizado en la obra. Los ladrillos deberán estar completamente saturados de agua al momento de pegarlos con el mortero, en hileras perfectamente niveladas y aplomados con las uniones verticales sobre el centro del ladrillo inferior, para obtener una buena adherencia. Esta actividad incluye el repello y pulido de una cara del entabicado.-El repello se hará con mortero de cemento-arena en una proporción 1:4.La colocación de los repellos se deberá realizar en una capa de 2-2.5 centímetros de espesor. Antes de aplicarlos, las paredes deberán limpiarse y humedecerse por rociadura para comenzar los trabajos de enlucidos. La capa de repello deberá quedar uniforme y se deberá conservar húmeda por rociaduras frecuentes durante un lapso no menor de tres (3) días. Después del repello el pulido se aplicará en capas uniformes de hasta 5mm y se deberá conservar húmeda por rociaduras frecuentes al menos 2 días.
CONSIDERACIONES DEL CALCULO DE ANALISIS DE COSTO
Los ladrillos utilizados tendrán un promedio de tamaño de 26x13x6 CMS. El entabicado se construirá utilizando liga y repello de mortero de cemento arena de dosificación 1:4 considerando para cada m3 un promedio de 8.341 bolsas de cemento, 1.179 m3 de arena, 0.304 m3 de agua incluyendo un 25% adicional para curado durante el proceso de fraguado del mortero.- El desperdicio en ladrillos es del 10% ocasionado por cortes. Se considera para la preparación del pulido que por cada barril de 55 galones se le aplica 18 galones de agua y 5 bolsas de cal hidratada.
CRITERIOS DE MEDICION Y PAGO
MEDICION: La cantidad a pagarse por entabicado de ladrillo rafón repellado y pulido será el número de metros lineales medidos en la obra, de trabajos ordenados, ejecutados y aceptados por el supervisor de obra. PAGO: Estos precios y pagos constituirán la compensación total por suministro de materiales, transporte, colocación y acabado del entabicado así como por mano de obra, equipo, herramientas, materiales y operaciones conexas en la ejecución de los trabajos descritos en toda esta especificación.
CIRCUITO DE FUERZA HASTA DE 20 Amp PVC eléctrico de 1/2”
UNIDAD: ML
DESCRIPCION DE LA ACTIVIDAD A REALIZAR
La actividad consiste en el ranurado de ser necesario, instalación de pvc eléctrico de 3/4", cableado con 2 cables # 8, 1cable # 14.. Durante el proceso de construcción se debe de tapar los orificios de la ducteria para evitar el ingreso de cuerpos extraños, evitando doblar los ductos y la formación de quiebres que impidan o limiten el paso de los cables, el cableado debe ser continuo sin empalmes, de ser necesario empalmar cables se deberá de colocar una caja octogonal. Dejando las condiciones necesarias para la colocación de los accesorios en las salidas del circuito.
CONSIDERACIONES DEL CALCULO DE ANALISIS DE COSTO
Se considera los materiales y mano de obra necesarias, para la ejecución de esta actividad, asi como el 6% de desperdicio en los cables.
CRITERIOS DE MEDICION Y PAGO
MEDICION: Se medirá por metro lineal. La cantidad a pagarse será el número de metros lineales por circuito medidos en obra, de trabajos ordenados, ejecutados y aceptados por el supervisor de obra.
PAGO: se pagará al precio del contrato estipulado en el Ítem correspondiente, dichos precios y pagos constituirán la compensación total por el suministro de materiales, transporte, colocación, así como por mano de obra, equipo, herramientas, materiales y operaciones conexas en la ejecución de los trabajos descritos en toda la especificación.
INTERRUPTOR SENCILLO
UNIDAD: UND
DESCRIPCION DE LA ACTIVIDAD A REALIZAR.
La actividad consiste en la suministro, instalación y fijación de la caja de 2´x4´ y su respectivo interruptor sencillo con su placa.
CONSIDERACIONES DEL CALCULO DE ANALISIS DE COSTO:
Se considera los materiales y mano de obra necesarios, para la ejecución de esta actividad, los accesorios de fijación se incluyen como parte de la placa de tomacorriente doble, Se considera la mano de obra de la apertura del agujero y el resane del mismo.
CRITERIOS DE MEDICION Y PAGO:
MEDICION: Se medirá por unidad. La cantidad a pagarse será el número de unidades, de trabajos ordenados, ejecutados y aceptados por el supervisor de obra. PAGO: Se pagará al precio del contrato estipulado en el ítem correspondiente, dichos precios y pagos constituirán la compensación total por suministro de materiales, transporte, colocación, así como por mano de obra, equipo, herramientas, materiales y operaciones conexas en la ejecución de los trabajos descritos en toda la especificación.
INTERRUPTOR DOBLE
UNIDAD: UND
DESCRIPCION DE LA ACTIVIDAD A REALIZAR.
La actividad consiste en la suministro, instalación y fijación de la caja de 2´x4´ y su respectivo interruptor doble con su placa.
CONSIDERACIONES DEL CALCULO DE ANALISIS DE COSTO:
Se considera los materiales y mano de obra necesarios, para la ejecución de esta actividad, los accesorios de fijación se incluyen como parte de la placa de tomacorriente doble, Se considera la mano de obra de la apertura del agujero y el resane del mismo.
CRITERIOS DE MEDICION Y PAGO:
MEDICION: Se medirá por unidad. La cantidad a pagarse será el número de unidades, de trabajos ordenados, ejecutados y aceptados por el supervisor de obra. PAGO: Se pagará al precio del contrato estipulado en el ítem correspondiente, dichos precios y pagos constituirán la compensación total por suministro de materiales, transporte, colocación, así como por mano de obra, equipo, herramientas, materiales y operaciones conexas en la ejecución de los trabajos descritos en toda la especificación.
TOMACORRIENTE DOBLE POLARIZADO
UNIDAD: UND
DESCRIPCION DE LA ACTIVIDAD A REALIZAR.
La actividad consiste en la suministro, instalación y fijación de tomacorriente doble polarizado, la caja de 2´x4´ y su respectiva placa.
CONSIDERACIONES DEL CALCULO DE ANALISIS DE COSTO:
Se considera los materiales y mano de obra necesarios, para la ejecución de esta actividad, los accesorios de fijación se incluyen como parte de la placa de tomacorriente doble.
CRITERIOS DE MEDICION Y PAGO:
MEDICION: Se medirá por unidad. La cantidad a pagarse será el número de unidades, de trabajos ordenados, ejecutados y aceptados por el supervisor de obra. PAGO: Se pagará al precio del contrato estipulado en el ítem correspondiente, dichos precios y pagos constituirán la compensación total por suministro de materiales, transporte, colocación, así como por mano de obra, equipo, herramientas, materiales y operaciones conexas en la ejecución de los trabajos descritos en toda la especificación.
CENTRO DE CARGA DE 24 ESPACIOS
UNIDAD: UND
DESCRIPCION DE LA ACTIVIDAD A REALIZAR.
La actividad consiste en el picado de pared de ser necesario, instalación, armado y conexión del centro de carga.
CONSIDERACIONES DEL CALCULO DE ANALISIS DE COSTO:
Se considera los materiales y mano de obra necesarios, para la ejecución de esta actividad, colocando 16 breaker de 20 amperios, mas 4 entre 30 y 60 amperios por centro de carga.
CRITERIOS DE MEDICION Y PAGO:
MEDICION: Se medirá por Unidad. La cantidad a pagarse será el número de Unidades medidos en obra, de trabajos ordenados, ejecutados y aceptados por el supervisor de obra. PAGO: Se pagará al precio del contrato estipulado en el ítem correspondiente, dichos precios y pagos constituirán la compensación total por suministro de materiales, transporte, colocación, así como por mano de obra, equipo, herramientas, materiales y operaciones conexas en la ejecución de los trabajos descritos en toda la especificación.
MUEBLE DE LAVATRASTOS
UNIDAD: UNIDAD
DESCRIPCION DE LA ACTIVIDAD A REALIZAR
La actividad consiste en la construcción de un mueble de concreto para lavatrastos en módulo de cocina según detalles y dimensiones mostrados en planos, Incluyendo mesón para lavatrastos. Consta de paredes de bloque de 4” que servirán de apoyo a la losa que conforma el fondo del lavatrastos sobre la cual se fundirán las paredes también de concreto armado tal como se detalla en planos con varilla número 3. Un sobre piso de 10 cm. La losa deberá tener pendiente hacia el centro de la superficie donde se colocará un sifón para el drenaje de toda la pileta. Se incluye el suministro y colocación de todos los accesorios necesarios para los sistemas de agua potable y drenajes El acabado tanto de las paredes como de la losa será con revestimiento de cerámica blanca de 20x30cm. de 1.85 metros de largo 0.60 metros de ancho y 0.90 metro de altura con el lavatrastos empotrado y con la llave ahorradora de agua.
CONSIDERACIONES DEL CALCULO DE ANALISIS DE COSTO
Se considera el suministro del lavatrastos, llave, cerámica para el mesón y el salpicadero y todas las instalaciones de agua potable y desagüe de las aguas grises.
CRITERIOS DE MEDICION Y PAGO
MEDICION: La cantidad a pagarse es por el mueble completo y todos los trabajos en la obra, ordenados, ejecutados y aceptados por el supervisor de obra. PAGO: Estos precios y pagos constituirán la compensación total por suministro de materiales, colocación y acabado completo del mueble, así como por mano de obra, equipo, herramientas, materiales y operaciones conexas en la ejecución de los trabajos descritos en toda esta especificación.
CIRCUITO DE ILUMINACION CON LUMINARIA LED 2 TUBOS W, 48”. PVC eléctrico de ¾”
UNIDAD: ML
DESCRIPCION DE LA ACTIVIDAD A REALIZAR
Este trabajo consistirá en el ranurado de ser necesario, instalación de PVC eléctrico de ¾” cedula 40, cableado con dos cables #12. Durante el proceso de construcción se debe tapar los orificios de la ducteria para evitar el ingreso de cuerpos extraños, utilizando curvas, el cableado debe ser continuo sin empalmes, de ser necesario empalmar cables se debe colocar una caja octogonal. Dejando las condiciones necesarias para la colocación de los accesorios y focos LED.
CONSIDERACIONES DEL CALCULO DE ANALISIS DE COSTO
Se considera los materiales y mano de obra necesarias, para la ejecución de esta actividad, asi como el 6% de desperdicio en los cables.
CRITERIOS DE MEDICION Y PAGO
MEDICION: Se medirá por metro lineal. La cantidad a pagarse será el número de metros lineales por circuito medidos en obra, de trabajos ordenados, ejecutados y aceptados por el supervisor de obra. PAGO: se pagará al precio del contrato estipulado en el Ítem correspondiente, dichos precios y pagos constituirán la compensación total por el suministro de materiales, transporte, colocación así como por mano de obra, equipo, herramientas, materiales y operaciones conexas en la ejecución de los trabajos descritos en toda la especificación.
SUMINISTRO E INSTALACION DE VENTANAS DE PVC
UNIDAD: M2
DESCRIPCION DE LA ACTIVIDAD A REALIZAR
Este trabajo consistirá en el suministro de ventanas de PVC color blanco.
CONSIDERACIONES DEL CALCULO DE ANALISIS DE COSTO
Se considera el rendimiento por mano de obra calificada de instalador por ventana instalada.
CRITERIOS DE MEDICION Y PAGO
La cantidad a pagarse es por M2 de ventana suministrada e instalada y en pleno funcionamiento aprobado por el supervisor.
REPARACION DE PUERTAS
UNIDAD: UNIDAD
DESCRIPCION DE LA ACTIVIDAD A REALIZAR
Este trabajo consistirá en la reparación de las puertas de madera de oficinas y servicios sanitarios, cambiando molduras, contramarcos y llavines.
CONSIDERACIONES DEL CALCULO DE ANALISIS DE COSTO
Se considera el rendimiento por mano de obra calificada de carpintero 1 JDR por puerta reparada.
CRITERIOS DE MEDICION Y PAGO
La cantidad a pagarse es por puerta reparada y en pleno funcionamiento aprobado por el supervisor.

ESPECIFICACIONES TÉCNICAS DE CONSTRUCCIÓN
MANEJO AMBIENTAL.
Todos los procesos constructivos o actividades que influyen de alguna manera sobre el medio ambiente se enmarcarán dentro de las leyes vigentes para este manejo, con el objeto de minimizar el impacto producido sobre la naturaleza, la salud de las personas, los animales, los vegetales y su correlación, de tal forma que se oriente todo el proceso a la protección, la conservación y el mejoramiento del entorno humano y biológico, tanto en las áreas objeto del contrato como de las zonas adyacentes al mismo.
SEGURIDAD INDUSTRIAL.
El contratista acatará las disposiciones legales vigentes relacionadas con la seguridad del personal que labora en las obras y del público que directa o indirectamente pueda afectarse por la ejecución de las mismas, acatando la resolución 02413 del 22 de mayo de 1979 del Ministerio del trabajo y seguridad social, por el cual se dicta el reglamento de higiene y seguridad para la industria de la construcción.
DESCAPOTE (INCLUYE BOTADA) Esta actividad de descapote se refiere a la remoción de la capa vegetal superficial (e=15cm), además de la extracción de todas las raíces y demás objetos que en concepto del interventor sean inconvenientes para la ejecución de las obras. El descapote se ejecutara de acuerdo a lo definido en la localización como área a construir, más dos metros del perímetro de los edificios. Esta operación se hará por medios manuales o mecánicos; sin importar la humedad o materiales encontrados como roca etc., cuidando de no mover los puntos de referencia previamente fijados en el levantamiento topográfico. Para la correcta ejecución del descapote antes de iniciar su ejecución se deberá realizar la limpieza y el desmonte consistente en el corte de arbustos, remoción de troncos, raíces, pastos y cualquier otra vegetación o material que haya necesidad de remover que obstaculice la ejecución de las obras. La disposición del material retirado deberá realizarse en sitios previamente autorizados.
MOVIMIENTOS DE TIERRA.
El trabajo de movimiento de tierras consiste en la excavación, relleno y nivelación de tierra necesarios para la construcción de la obra, según se indicare en los planos o según resultaren necesarios durante el avance de los trabajos, e incluye el suministro del equipo, mano de obra, materiales, herramientas y servicios necesarios para llevarlos a cabo. Los planos de diseño deberán indicar las elevaciones del terreno existente y las elevaciones finales requeridas. Cualquier excavación, relleno o nivelación adicional requerida para la completa terminación del trabajo será responsabilidad del Contratista y solicitada por la Supervisión. Las excavaciones se harán empleando cualquier método aceptado. El Contratista tendrá especial cuidado al hacer las excavaciones de las obras, en no traspasar los límites y niveles indicados en los planos. Todos los planos de nivel, puntos de coordinación y estacas deben ser preservados y si se destruyen deberán de ser repuestos por cuenta del Contratista.
ACERO DE REFUERZO G-60 FIGURADO En esta actividad se realizará el suministro, corte, figuración, amarre y colocación del acero de refuerzo de 60.000 PSI para los elementos estructurales en concreto reforzado según las indicaciones que contienen los Planos Estructurales. Se incluye en esta actividad el alambre de amarrar. Este refuerzo y su colocación se harán en conformidad con los diseños y detalles mostrados en los planos y lo indicado en las Normas Colombianas de Diseño y Construcción Sismo Resistente, las Normas vigentes y las indicaciones de la Interventoría
EXCAVACIONES DE ZANJA PARA INSTALACIÓN DE TUBERÍAS
Esta especificación se refiere a la excavación en zanja, a mano o con equipo mecánico, donde se alojarán las tuberías, válvulas y accesorios requeridos en la Planta Potabilizadora, según lo mostrado en los planos de trabajo y/o según lo ordenado por la Supervisión. Las condiciones reales del terreno en donde serán excavadas, definirán su ubicación. En esta sección quedan incluidas, todas las indicaciones que se han hecho en las secciones de Excavaciones Generales y de Excavaciones para Estructuras que sean pertinentes y no contradigan las especificaciones que se determinen en esta sección. También deberá incluirse como parte de la excavación, trabajos necesarios tales como: desagüe, protección a instalaciones existentes tanto superficiales como subterráneas, edificaciones, así como la subsecuente remoción de las obras temporales. Las zanjas para instalar las tuberías serán ejecutadas a la profundidad indicada en los planos de trabajo o según lo ordene la Supervisión. La altura del relleno medida desde la corona de la tubería, hasta la superficie de rodamiento, en el caso que exista circulación de vehículos, no deberá ser inferior a 1.00 m. El ancho de las excavaciones que formarán las paredes verticales de zanja, variarán en función del diámetro de la tubería que será alojada en ella, como se señala en el cuadro siguiente:

Tabla 1: Anchos de zanja por diámetro de tubería
Las excavaciones deberán ser afinadas en tal forma que cualquier punto de las paredes de las mismas no diste en ningún caso más de cinco (5) cm. de la sección autorizada por la Supervisión, cuidándose que esta desviación no se repita en forma sistemática. Cuando se den problemas de estabilidad en Taludes de zanja, la Supervisión analizará el caso y autorizará al Contratista para que en el Tramo donde se presente este problema, deje los Taludes de la zanja con cierto ángulo de inclinación. Dicho ángulo tendrá como base el ancho de Fondo de la zanja y la magnitud del ángulo será estipulada por la Supervisión, o este podrá ordenar al contratista ademar las zanjas. Las características y forma de los ademes serán fijadas por la Supervisión sin que esto releve al Contratista de ser el único responsable de los daños y perjuicios que directa o indirectamente se deriven por falla de los mismos. El fondo de la excavación deberá ser afinado minuciosamente a fin de que la tubería que posteriormente se instale en la misma quede a la profundidad deseada y con la pendiente de diseño, la cual en lo posible será igual a las pendientes longitudinales de tramos pavimentados donde se localiza la zanja o paralela a la pendiente de la superficie de terrenos naturales. El producto de la excavación se depositará a uno o ambas lados de la zanja, dejando libre en el lado que fije la Supervisión un pasillo de sesenta (60) cm. entre el límite de la zanja y el pie del talud del bordo formado por dicho material. El Contratista deberá conservar este pasillo libre de obstáculos. Los trabajos de bombeo que deba realizar el Contratista para efectuar las excavaciones y conservarlas en seco durante el tiempo de colocación de la tubería, la Supervisión dará su visto bueno para poner término a esta actividad.
RELLENO Y COMPACTADO CON MATERIAL SELECTO. El material selecto no debe tener un índice de plasticidad mayor de 6. Se conoce como material selecto, aquel identificado en bancos de préstamos ubicados en sitios específicos y que son clasificados por laboratorios de materiales conforme los estándares más comúnmente conocidos, tales como: la clasificación unificada de suelos, ASTM D 2487-667. El relleno deberá efectuarse con material selecto aprobado por la Supervisión, en capas de 20 cms. de espesor. El Contratista será responsable por la perfecta estabilidad del relleno y reparará por su propia cuenta cualquier porción fallada o que haya sido dañada por la lluvia, descuido o negligencia de su parte; removerá del lote, materiales innecesarios sobrantes del trabajo de relleno. Antes de proceder a la compactación se le aplicará uniformemente al material de relleno la humedad necesaria. Cuando el grado de humedad resulte mayor que permitido se eliminará el agua excedente antes de proceder a su compactación. El relleno no comenzará hasta que el sitio en que será colocado haya sido inspeccionado. No se depositará ningún relleno hasta que en opinión de la Supervisión se haya removido toda la capa vegetal. Todo el material a usarse como relleno estará libre de materia orgánica, basura y otros desperdicios y deberá ser aceptado previamente por la Supervisión. No se permitirá depositar rellenos encima de materia orgánica la que deberá de removerse antes de proceder a los rellenos. El Contratista llevará a cabo la nivelación del terreno hasta los niveles indicados en el plano. La plataforma terminada se hará con una pendiente gradual donde sea posible para darle un desagüe a las aguas. El Contratista tomará especial nota de los taludes y sus debidas inclinaciones en todo el perímetro de las estructuras. Los rellenos para tales taludes deberán de ser adecuadamente diseñados por El Contratista para mantener la forma del talud sin que se le ocasione fallas por la lluvia o cualquier otro motivo, debe cubrirse con capa vegetal para evitar la erosión. Todo material sobrante que no sirva para relleno, basura y toda clase de desperdicio, será retirado del terreno por cuenta de El Contratista y depositado en un sitio aprobado por la supervisión.
RELLENO Y COMPACTADO CON MATERIAL DEL SITIO. La compactación se efectuará por un procedimiento que asegure una compactación de acuerdo a como se indique en los planos o especificaciones particulares aprobadas por la Supervisión. Antes de proceder a colocar una nueva capa de relleno, deberá procederse a obtener la aprobación por la Supervisión de la capa anterior. Este relleno se efectuará utilizando los materiales extraídos de las excavaciones de la obra, el cual deberá ser libre de piedras, arcilla, material orgánico, basura, lodo o cualquier otro material inestable. Una vez colocado deberá formar arriba del nivel del terreno un borde de 3 cm. de espesor o como lo indique la Supervisión. El relleno se hará en capas no mayores a 20 cm., con contenido de humedad comprendida ± 2% respecto a la humedad óptima obtenida en el laboratorio. No se exigirá un determinado tipo de equipo para la compactación, pudiéndose utilizar equipos vibrantes o de percusión, pero el Contratista deberá garantizar en todo momento la integridad de las obras. No se procederá a efectuar ningún relleno de excavación sin la aprobación de la Supervisión, caso contrario éste podrá ordenar la extracción del material, corriendo todos los gastos por cuenta del Contratista.
En el caso de que la excavación se haya hecho en roca y por ende no se pueda usar el material para relleno, se deberá importar material del sitio de otras partes del proyecto o en su defecto se deberá traer de algún banco de préstamo, en ambos casos el material deberá ser aprobado por la Supervisión. Esta importación de material y el botado del material rocoso serán responsabilidad del Contratista. Todo el material sobrante después del relleno será acarreado a bancos de desperdicios adecuados autorizados por la Municipalidad y aprobados por la Supervisión. Todos los gastos de acarreo de material sobrante y de desperdicios correrán por cuenta del Contratista.
RELLENO CON SUELO ORGÁNICO Y ENGRAMADO. El engramado será colocado sobre una base desuelo orgánico de 0.15 m de espesor finamente disgregado y regado uniformemente. En caso que cualquier superficie en la cual se ha de distribuir suelo orgánico ha llegado a ser consolidada o compactada, deberá primero ser escarificada o aflojada previamente a la colocación de los suelos orgánicos. El suelo orgánico deberá ser obtenido de una fuente aprobada por la Supervisión. Todas las piedras, raíces y demás materiales objetables, deberán ser removidos durante la operación de distribución; Luego se aplicará Sulfato de Amonio de tipo comercial en forma normal, con una relación de 0.50 Kg por metro cuadrado y se incorporará con rastrillo hasta que se logre una tierra cultivable. La colocación de la capa vegetal debe llevarse a cabo tan pronto se terminen las construcciones aledañas. Sobre el relleno orgánico se plantará grama corriente aprobada por la Supervisión, salvo que en las especificaciones particulares o los planos estipulen un tipo de pasto o grama de características especiales. El Contratista deberá regar, podar y conservar los rellenos engramados hasta que se emita el certificado de terminación de la obra.
CONTROL DE CALIDAD DE LOS MATERIALES Y DE LA COMPACTACIÓN El Contratista es responsable de la realización de ensayos para demostrar la buena calidad de los materiales que se emplean para relleno, así como los ensayos que demuestren las características de la compactación lograda en el relleno de zanjas. La Supervisión y el Contratista, fundamentándose en la metodología usualmente empleada para este tipo de controles, definirán los controles de calidad a aplicarse. En principio se harán comprobaciones de densidades de campo a las capas compactadas El espesor permisible de relleno suelto, previo a la compactación, deberá ser autorizado por La Supervisión. Y determinará el sitio y la secuencia de estas pruebas. El contratista efectuará todos los ensayos de granulometría y plasticidad y demás requeridos para cada uno de los materiales empleados en el relleno, así como las pruebas de densidad en el sitio para determinar la compactación del relleno. Se efectuarán un mínimo de 1 pruebas de densidad en el sitio por capa compactada. El costo de estas y demás ensayos requeridos será por cuenta del Contratista, incluyendo aquellas repetidas por no haber pasado el porcentaje requerido En los casos en que la compactación no cumpla con lo especificado, la Supervisión ordenará el cumplimiento de las densidades de compactación, por lo cual el Contratista tendrá que rehacer los trabajos.
TUBERÍAS DE CLORURO DE POLIVINILO (PVC) La tubería de Cloruro de Polivinilo (P.V.C.) será para una presión de trabajo de 112 m.c.a. y deberá cumplir con las normas ASTM D2241- Clase 160, y el material deberá cumplir la norma ASTM D1784 para el suministro de agua potable. Las uniones de las tuberías serán del tipo “Unión lisa” (Slip, Socket) o “Push on joint end”, para unirse con los tubos mediante el uso de cemento solvente o empaques cumpliendo con las normas ASTM D2672 para junta cementada y ASTM D3139 para junta rápida. Las propiedades físicas de las tuberías serán probadas de conformidad a las normas ASTM D2241, D1598 y D1599, para la presión sostenida, presión de estallido, integridad hidrostática, aplastamiento y calidad de la extrusión. La tubería de PVC será fabricada de compuestos vírgenes de clase igual o superior a las clases 12454-B, 12454-C, 14333D, según lo define la Especificación ASTM D 1784. Los compuestos usados en la fabricación de las tuberías y accesorios no deben contener ingredientes solubles en agua en una cantidad tal que su migración en determinadas cantidades en el agua sea tóxica y no permitida, según las normas de calidad OPS/OMS para el agua potable. No se aceptarán materiales que contengan plomo y sus derivados, o materiales solubles en agua u otros que perjudiquen la calidad específica de la tubería La tubería debe suministrarse en longitudes estándares de 6.1 m ± 25 mm. Un máximo del 1% de la longitud de cada diámetro puede suministrarse en longitudes variables que no sean menores a los 3 m. Para el almacenamiento de la tubería y accesorios de PVC deberá de seguirse las recomendaciones del fabricante, debiéndose proteger el producto de la intemperie y especialmente de los rayos solares, por lo que se recomienda una bodega cubierta y oscura para su almacenaje.
PEGAMENTO DE P.V.C. El pegamento a suministrarse debe cumplir con la Norma ASTM-D-2564, la cual rige las Especificaciones para el Cemento Solvente. Esta es una solución de P.V.C. clase 12454-B.
CEMENTO El cemento a emplear en las mezclas de concreto será cemento Portland tipo I (normal) y deberá cumplir en todo con las especificaciones correspondientes de la A.S.T.M. designación C-150-69. Debe llegar al sitio de la construcción en sus envases originales y enteros, debe ser completamente fresco y no debe mostrar evidencias de endurecimiento. El cemento será entregado en bolsas fuertes y seguras, y será almacenado en un depósito seco protegido de la intemperie, con piso de madera elevado (no menos de 15 cm), que haya sido aprobado por la Supervisión. No se admitirá cemento que llegue en bolsas rotas. El cemento será usado tan pronto como se pueda, en el orden cronológico en que fue entregado. Cualquier cemento que haya sido perjudicado y afectado por la humedad, o por otras causas, será retirado inmediatamente del lugar. El cemento se dispondrá en pilas no mayores de ocho (8) bolsas, evitando ser apilado contra las paredes de la bodega. No se permitirá almacenar cemento por un período mayor a un mes. La Supervisión se reserva el derecho de someter las entregas a ensayos independientes y a rechazar sin objeción todo el cemento que no cumpla con las especificaciones o no sea adecuado para producir el concreto de la calidad indicada en los planos, especificaciones u órdenes de la Supervisión. Todo el cemento rechazado deberá ser retirado inmediatamente del sitio de la obra.
AGUA El agua que se emplee en todas las mezclas debe ser limpia y libre de grasas o aceites, de materias orgánicas, álcalis, sales, ácidos o impurezas que puedan afectar la resistencia y propiedades físicas del concreto o del refuerzo. Deberá ser previamente aprobada por la Supervisión. Será necesaria la certificación de laboratorio aprobando la fuente de aprovisionamiento. La temperatura de ésta para la preparación del concreto será superior a 4° C.
AGREGADOS Generalidades Los agregados empleados en la mezcla de concreto deben ser clasificados según su tamaño y deben ser almacenados en forma ordenada para evitar que se revuelvan, se ensucien o se mezclen con materias extrañas. Deben cumplir con todas las Especificaciones de la A.S.T.M para los agregados de concreto designación C-33-67. La arena debe estar libre de todo material vegetal, mica, limo, materias orgánicas, etc. La calidad y granulometría de la arena debe ser tal que cumpla con los requisitos de las especificaciones correspondientes y permita obtener un concreto denso sin exceso de cemento, así como de la resistencia requerida. Los agregados para el concreto son: el agregado grueso y el agregado fino, los cuales deberán cumplir con las normas ASTM C 33. Los agregados necesarios serán combinados en tales proporciones para obtener una graduación satisfactoria. La curva de graduación deberá permanecer dentro de los límites que son equivalentes a la tabla 2 de la norma ASTM C 33.

Tabla No. 2 Tamaños para agregados gruesos y finos.
Todos los agregados para el concreto proporcionados por el Contratista serán de fuentes aprobadas por la Supervisión. La aprobación de una fuente por la Supervisión no constituye en ningún momento aprobación de todos los materiales tomados de dicha fuente y el Contratista será responsable por la calidad específica de los materiales usados en las obras. Todos los agregados que se entreguen en la planta de dosificación o al sitio en que se efectúan las mezclas deberán tener un contenido de humedad uniforme y estable. El Contratista deberá probar por su cuenta en el laboratorio todos los agregados de conformidad con las indicaciones de la Supervisión.
Agregado Grueso
El agregado grueso para el concreto consistirá de piedra triturada sin poros, o grava de formas cúbicas y no alargadas (laja), y estará graduada de acuerdo con ASTM C33. El agregado de piedra caliza solamente será aceptable si es de una variedad cristalina dura y con una absorción menor que el 4%. El agregado grueso para todas las clases de concreto estará de acuerdo con la tabla 2 de ASTM C33. Los tamaños máximos y mínimos nominales del agregado grueso son 40 mm. y 20 mm., respectivamente. El tamaño máximo del agregado grueso será, en general, tan grande como sea posible, pero en ningún caso mayor que: Un cuarto del espesor mínimo del componente, ó 6 mm menos que la distancia entre las barras de refuerzo o aquélla de la cubierta del concreto sobre el refuerzo, en el entendido que el concreto puede ser colocado sin dificultades incluso en todos los lugares que circunda el refuerzo y pueda llenar las esquinas del molde. De suministrarse diferentes tamaños de agregado grueso en forma separada, se controlará la graduación del agregado grueso mediante la obtención de agregados de 40 mm de tamaño máximo nominal.
Descripción:
Todos los materiales preparados para producir agregado grueso reunirán los requisitos de calidad indicados en el Cuadro A, y se triturarán y cernirán cuando sea necesario, para satisfacer el análisis granulométrico para tamaño y granulometría para los distintos ítems de construcción. Todas las partículas deberán estar razonablemente libres de recubrimiento de arcilla, limo o polvo, y la cantidad máxima de materiales perjudiciales no deberá exceder los valores dados en el Cuadro B. El agregado grueso se producirá de los siguientes materiales: Piedra La piedra consistirá de roca tenaz durable, libre de textura pizarrosa o planos de clivaje.
Requisitos Físicos:
La grava consistirá de partículas, duras, e impermeables, podrá ser triturada como se requiera, completamente lavada para quitar las impurezas antes de ser cargada.
CUADRO A

Agregado Fino:
El agregado fino deberá ser arena natural, dura, densa, durable y limpia y cumplirá con ASTM C33 y será tal que cuando se combine con el agregado grueso se obtenga una graduación de conjunto adecuada. Deberá estar libre de arcilla, materia orgánica y otras impurezas y no deberá contener más del 2% por peso de material que pase por un tamiz #200.
Descripción:
El agregado fino consistirá de arena de calidad aprobada, de fuente aprobada, limpia y libre de terrenos de grade y de todo material vegetal y perjudicial. Estará compuesto de partículas duras, resistentes, durables y reunirá los requisitos de los ensayos que a continuación se especifican.
Requisitos de Granulometría y Calidad:
Porcentajes en Peso que pasa por cedazo de Malla Cuadrada.

MEZCLADO DEL CONCRETO No se permitirá el uso de concreto que tenga más de 45 minutos de estar mezclado a menos que hayan utilizado aditivos especiales, autorizados por la Supervisión. Se permitirá el uso de concreto premezclado siempre y cuando reúna las condiciones indicadas en estas especificaciones y esté de acuerdo a la especificación ASTM C-99. La Supervisión podrá autorizar la mezcla a mano de las partes de la obra de escasa importancia; debiendo hacerse entonces sobre una superficie impermeable, primero logrando una mezcla de aspecto uniforme y agregando después el agua dosificadamente, en pequeñas cantidades hasta obtener un producto homogéneo. Se tendrá especial cuidado durante la operación de no mezclar con tierra e impurezas. Para producir un concreto de calidad uniforme los ingredientes deben medirse con precisión en cada revoltura y deberán mezclarse completamente, hasta que su apariencia sea uniforme, antes de ser vertido debe contar con la aprobación de la Supervisión. Para el concreto mezclado en la obra los ingredientes deberán ser mezclados en equipos adecuados, previamente revisados por la Supervisión, no sólo al comienzo de la obra, sino una o más veces por mes según lo ordene la Supervisión. Las mezcladoras deben recibir un mantenimiento apropiado durante todo el tiempo que dure el contrato y no deben usarse equipos deficientes. Los tambores de todas las mezcladoras deben de revolucionar a la velocidad recomendada por el fabricante. Los tambores de las mezcladoras deberán estar completamente limpios antes de cada uso y deberán reemplazarse las paletas gastadas. El número de mezcladoras a emplear en la obra deberá estar de acuerdo con el volumen a colar y las necesidades de la obra, teniendo en cuenta una suficiente capacidad de reserva. Todo el concreto deberá ser mezclado a máquina y en casos especiales podrá hacerse a mano siempre que la Supervisión considere que sea imposible hacerlo con máquina, para esto el Contratista deberá disponer de plataforma sobre la cual lo hará y todos los elementos necesarios para realizar un buen trabajo. Para este tipo de trabajos el Contratista deberá tener autorización por escrito de la Supervisión. Pero esto no relevará al Contratista de la responsabilidad de un mal trabajo. El tiempo de mezclado deberá estar de acuerdo a las recomendaciones del fabricante y a los resultados de las pruebas de efectividad de las mezcladoras que se practiquen mientras dure la obra. El tiempo de mezclado debe medirse a partir del momento en que todos los ingredientes estén dentro de la mezcladora pero no deberá ser menor a un minuto y medio. Se prohibirá la producción de concreto excesivo o agregar agua (que exceda la relación aguacemento de diseño) para compensar la pérdida de revenimiento como resultado de demoras en la entrega o en la colocación, o cuando sea requerido garantizar impermeabilidad en la estructura. El concreto se transportará de la mezcladora al lugar donde debe vaciarse rápidamente y en tal forma que los materiales no sufran segregación. Bajo ninguna circunstancia el tiempo entre el comienzo de la mezclada y la colocación del concreto debe exceder de 30 minutos.
COLOCACIÓN DEL CONCRETO El concreto deberá colocarse sobre superficies que estén preparadas para recibirlo. No se podrá iniciar la colocación del concreto hasta tanto no se haya construido e instalado todos los encofrados y elementos que quedarán embebidos en la obra y hayan sido aprobados por la Supervisión. El concreto deberá ser colocado solamente en presencia d la Supervisión, excepto cuando se haya extendido un permiso por escrito para colocar concreto en su ausencia. Antes de colocar el concreto todas las superficies que quedarán en contacto con él deberán limpiarse y humedecerse bien y el concreto para la construcción de juntas debe ser preparado de acuerdo con lo indicado en el numeral siguiente. En todo caso, el concreto deberá depositarse lo más cerca posible de su posición final, evitando que fluya y ocasione algún tipo de segregación. El concreto debe ser depositado muy cuidadosamente para evitar segregaciones y no se le permitirá caer más de 1.25 m. en caída libre. Cuando se usen carros o canaletas, se deberán mantener limpios y usarse en tal forma que se evite la segregación. El concreto no debe ser bombeado o descargado a través de conductos que tengan aleación de aluminio. En el caso de concreto reforzado deberá tenerse cuidado de que el acero que lo refuerza esté completamente limpio y quede rodeado de concreto y que no queden huecos o cavidades. Es esencial que ni el refuerzo ni los encofrados se desplacen mientras se coloca el concreto o que las varillas sean movidas después del curado inicial. El concreto debe compactarse con vibradores aprobados por la Supervisión hasta dejarlo sin vacíos. Cuando se use un vibrador deberá ser manejado por operarios expertos; la vibración se debe continuar en cada sección del concreto hasta que cesen las burbujas de aire en la superficie. Se debe asegurar que la vibración no cause segregación. Los vibradores no deben usarse en contacto con el refuerzo ni contra el encofrado, ni contra elementos embebidos. Los vibradores no podrán usarse para producir flujo en dirección lateral, ya que esto produce segregación. Cada obra debe planearse cuidadosamente, y se dispondrá de un número adecuado de vibradores de capacidad suficientemente mayor que la necesaria para mantener la máxima rapidez de fabricación del concreto. Se dispondrá de bastante equipo de reserva para mantener plenamente la operación de colocación cuando algunos vibradores estén en reparación. Cuando se inicie el colado de una sección, deberá efectuarse en forma continua y no debe interrumpirse hasta encontrar una junta de construcción apropiada. El concreto se debe colocar de tal manera que la superficie entre los encofrados o moldes se mantengan firmemente a nivel para evitar así el flujo lateral del concreto recién colocado. Durante la colocación, la temperatura del concreto se deberá mantener tan baja como sea posible a fin de evitar los efectos nocivos del calor sobre la calidad del concreto. No se podrán efectuar colados cuando la temperatura ambiental esté muy alta o cuando la temperatura de colocación del concreto exceda los 32°C (90°F).
ENCOFRADOS Las formaletas con sus soportes tendrán la resistencia y rigidez necesarias para soportar el concreto, sin movimientos locales superiores a la milésima (0.001) de luz. Los apoyos estarán dispuestos de modo que en ningún momento se produzcan sobre la parte de la obra ya ejecutada esfuerzos superiores al tercio (1/3) de los esfuerzos de diseño. Las juntas de las formaletas no dejarán rendijas de más de tres (3) milímetros, para evitar pérdidas de la lechada, pero deberán dejar la tolerancia necesaria para evitar que por efecto de la humedad durante el colado se compriman y deformen los tablones, en el caso de usar madera. El encofrado deberá ofrecer la seguridad y calidad que permita obtener la textura exigida en la superficie de la estructura y colocada de tal forma que permanezca rígida durante el proceso de colado y fraguado del concreto, con el empalme de las juntas lo suficientemente ajustado para evitar fuga de la lechada. No deberán usarse pernos que atraviesen completamente los encofrados, como método para asegurar el alineamiento de las formaletas, a menos que se hayan tomado las debidas precauciones para asegurar la impermeabilidad una vez que éstos se hayan removido. Cualquier depresión resultante del uso de pernos que sólo hayan penetrado parcialmente las losas, deberá sellarse adecuadamente. Deberán colocarse encofrados superiores para las superficies de concreto que tengan pendientes mayores a 1:2.5. Antes de que cada operación de colado sea comenzada, el encofrado deberá ser cuidadosamente examinado y las caras de contacto del molde con el concreto deberán ser limpiadas, nivelada su superficie completamente y tratadas con aceites adecuados para moldes. No se comenzará el colado hasta que la Supervisión haya inspeccionado y aprobado el encofrado y éste será removido solamente con el permiso de ellos. El trabajo de limpieza de superficie después de recibir el permiso, deberá ser realizado bajo la supervisión directa de un Supervisor competente. Se deberá tener gran cuidado durante la remoción para evitar impactos y esfuerzos reversibles en el concreto. Los tiempos dados en la tabla 3 pueden ser tomados como guía para la remoción del molde, asumiendo que el miembro de que se habla solamente estará cargando su propio peso.
DESENCOFRADOS Ninguna carga de construcción deberá apoyarse sobre alguna parte de la estructura en construcción, ni se deberá retirar algún puntal de dicha parte, excepto cuando la estructura, junto con el sistema restante de cimbra y de puntales tenga suficiente resistencia como para soportar con seguridad su propio peso y las cargas soportadas sobre ella. El descimbrado deberá hacerse de tal forma que no perjudique la completa seguridad y durabilidad de la estructura. El concreto que se descimbre debe ser suficientemente resistente para no sufrir daños posteriores. Durante la actividad de descimbrar se cuidará de no dar golpes ni hacer esfuerzos que puedan perjudicar al concreto. Tiempo mínimo para retirar formaletas: - 48 horas en los costados de columnas, de paredes y de vigas. - 7 días mínimos para las paredes de concreto armado de los módulos de tratamiento. La Supervisión aprobará la aplicación de cualquier carga temprana que se pretenda aplicar sobre esta área desencofrada. - 21 días para losas y vigas aéreas.
Se usará una película de aceite quemado en la cara de la formaleta en contacto con el concreto para evitar descascaramientos de la superficie del concreto colado. En ningún momento se permitirá cargar la estructura, con almacenamiento de materiales, equipos de construcción o cualquier otro tipo de sobrecarga extraordinaria durante el tiempo que dure el concreto en alcanzar su resistencia de diseño.
CURADO DEL CONCRETO Después de la colocación del concreto deben protegerse todas las superficies expuestas de los efectos de la intemperie, sobre todo del sol y de la lluvia. El curado se iniciará tan pronto el concreto haya endurecido suficientemente a juicio de la Supervisión. Se cuidará de mantener continuamente húmeda durante los primeros siete (7) días la superficie del concreto. Se evitarán causas externas, (sobrecargas, vibraciones, etc.) que puedan provocar fisuras en el concreto sin fraguar o sin la resistencia adecuada. El Contratista debe acatar todas las indicaciones que le haga la Supervisión al respecto. Todos los repellos y acabados de paredes deben curarse en igual forma. El concreto recién colado deberá mantenerse constantemente húmedo y protegerse de daño por fluctuaciones de temperatura en la superficie, del sol y del viento hasta que haya fraguado adecuadamente. También se tomarán medidas preventivas para que el fraguado no sea acelerado, cubriéndolo con sacos húmedos o con cualquier otro material que pueda mantenerse húmedo permanentemente por lo menos durante 14 días después del colado. Aún después de haberse cumplido el período mínimo de curado, se deberá tener cuidado de evitar que el concreto sufra un secado excesivo.
CARACTERÍSTICAS DE LAS VARILLAS El acero de refuerzo deberá cumplir con las especificaciones de la ASTM para acero Grado 40 para elementos estructurales (Vigas, Columnas, Zapatas y Losas) y acero grado 60 para los demás. El acero de refuerzo se limpiará de toda suciedad u óxido superficial. Las varillas se doblarán en frío, ajustándose a los planos y especificaciones del proyecto, sin errores mayores de un (1) centímetro.
PLANOS:





Pasillo Central de Distribución

Cocina

Planta de Distribución

Planta de Techos


Planta de Instalaciones Eléctricas



ACERAS PERIMETRALES


DETALLE DE ACERA PERIMETRAL


ANEXO B
LISTA DE PRECIOS
No. Ítem | DESCRIPCION DEL SERVICIO | UNIDAD | CANTIDAD | PRECIO UNITARIO | IMPUESTO | PRECIO TOTAL |
| PRELIMINARES | ||||||
1 | DESMONTAJE DE INSTALACIONES ELECTRICAS | DIA | 5.00 | |||
2 | DESMONTAJE DE LAMINA DE TECHO EN ESTRUCTURA EXISTENTE | M2 | 352.88 | |||
3 | DESMONTAJE DE CIELO FALSO | M2 | 262.50 | |||
4 | DEMOLICION DE PISO MOSAICO | M2 | 262.50 | |||
5 | DEMOLICION DE PARED DE CONCRETO | M2 | 9.84 | |||
6 | DEMOLICION DE PARED DE TABLA YESO | M2 | 58.92 | |||
| TECHOS Y CIELO FALSO | |||||
7 | SOLERA DE CIERRE DE 15X15 CM, 4#3 Y #2@ 20 CM | M.L. | 83.33 | |||
8 | ENTABICADO DE LADRILLO RAFON DE 15 CM, (REPELLO Y PULIDO) | M.L. | 83.33 | |||
9 | VIGA AEREA DE METALICA DE TUBO ESTRUCTURAL DE 4" | UNID | 9.00 | |||
10 | SUM. E INST. DE TECHO DE CANALETA DE 4" GALVANIZADA | M2 | 352.88 | |||
11 | CAPOTE PARA LAMINA DE ALUZINC | M.L. | 28.00 | |||
12 | SUMIN. E INST. DE CIELO FALSO DE PVC | M2 | 262.50 | |||
| INSTALACIONES ELECTRICAS | ||||||
13 | CIRCUITO DE ILUMINACION DE 10 AMP. | M.L. | 130.00 | |||
14 | CIRCUITO DE FUERZA DE 20 AMP. | M.L. | 90.00 | |||
15 | SUM. E INST. DE INTERRUPTOR SENCILLO | UNID | 17.00 | |||
16 | SUM. E INST. DE INTERRUPTOR DOBLE | UNID | 4.00 | |||
17 | SUM. E INST. DE TOMACORRIENTE DOBLE | UNID | 25.00 | |||
18 | SUM. E INST. DE LAMPARA EMPOTRABLE LED DE 2 TUBOS | UNID | 26.00 | |||
19 | SUM. E INST. DE LAMPARA EMPOTRABLE LED DE 1X48"X32W | UNID | 10.00 | |||
20 | SUM. E INST. DE REFLECTOR DOBLE DE 100 W | UNID | 3.00 | |||
21 | SUM. E INST. DE CENTRO DE CARGA DE 24 ESPACIOS | UNID | 1.00 | |||
22 | SUM. E INST. DE MUFA DE 2" | UNID | 1.00 | |||
23 | SUM. E INST. DE ATERRIZAJE DE CENTRO DE CARGA | UNID | 1.00 | |||
No. Ítem | DESCRIPCION DEL SERVICIO | UNIDAD | CANTIDAD | PRECIO UNITARIO | IMPUESTO | PRECIO TOTAL |
| PISOS Y ACERAS | |||||
24 | FIRME DE CONCRETO | M2 | 262.50 | |||
25 | CERAMICA DE PISO DE 30X30 CM | M2 | 262.50 | |||
26 | MOLDURA DE CERAMICA DE 7X30 CM | M.L. | 220.00 | |||
27 | ACERA PERIMETRAL E= 10 CM Y ANCHO 1.00 M | M2 | 46.00 | |||
| MUEBLE DE COCINA, PUERTAS Y VENTANAS | |||||
28 | REPARACION DE PUERTAS | UNID | 6.00 | |||
29 | VENTANAS DE PVC | M2 | 33.72 | |||
30 | MUEBLE DE COCINA INCLUYE LAVATRASTOS | UNID | 1.00 | |||
| PINTURA Y ACABADOS | |||||
31 | PINTURA DE PAREDES | M2 | 1250.00 | |||
32 | PINTURA DE ELEMENTOS DE CONCRETO | M.L. | 200.00 | |||
33 | TALLADO DE BOQUETES DE VENTANAS | M.L. | 76.43 | |||
| INSTALACIONES HIDROSANITARIAS | |||||
34 | REPARACION DE SERVICIOS SANITARIOS | UNID | 5.00 | |||
35 | REPARACION DE LAVAMANOS | UNID | 5.00 | |||
| LIMPIEZA FINAL | |||||
36 | LIMPIEZA DE AREAS INTERNAS | M2 | 262.50 | |||
37 | ACARREO DE MATERIAL DE DESPERDICIO | M3 | 20.00 | |||
Nombre del Oferente: ________________________________
El suscrito firmante hace constar que la cotización que presenta que se presenta cumple con las especificaciones solicitadas por el Comprador.
Período de validez de la oferta: _______________________________
Fecha: _________________________________
Firma y Sello del Oferente:
Nombre y Cargo del Oferente: ______________________________
Dirección: ___________________________________________________________________________
Tel:__________________________
NOTA. En caso de discrepancia entre el precio unitario y el precio total, prevalecerá el precio unitario
ANEXO C
Formulario de Declaración de Mantenimiento de la Cotización.
[El cotizante completará este Formulario de Declaración de Mantenimiento de la Cotización de acuerdo con las instrucciones indicadas].
Fecha: XX de XXXXX de 2025.
Cotización: “Contratación de Servicios de Remodelación de la Oficina Regional La Esperanza, Intibucá del Proyecto Pro-Occidente”
Para: Secretaría de Agricultura y Ganadería-SAG
Los suscriptos declaramos que:
Entendemos que, de acuerdo con sus condiciones, las Cotizaciones deberán estar respaldadas por una Declaración de Mantenimiento de Cotización.
Aceptamos que seremos declarados automáticamente inelegibles para participar en cualquier proceso de compra o contratación bajo cualquier método de adquisición y en cualquier operación o proyecto con el Comprador por el período de seis (6) meses contados a partir de la fecha de notificación por parte de la UAP-SAG), si violamos nuestra(s) obligación(es) bajo las condiciones de la cotización si:
a) Retiramos nuestra Cotización durante el período de vigencia especificado por nosotros en la Solicitud de Cotización, o
b) Después de haber sido notificados por el Comprador de la aceptación de nuestra cotización dentro del período de validez de la cotización, (i) no logramos suscribir el Contrato u Orden de Compra o nos negamos a hacerlo.
Entendemos que esta Declaración de Mantenimiento de la Cotización expirará si no somos los seleccionados, y cuando ocurra el primero de los siguientes hechos: (i) si recibimos una notificación con el nombre del proveedor seleccionado, o (ii) han transcurrido 28 días después de la expiración de nuestra cotización.
Nombre del Cotizante*:
Nombre de la persona debidamente autorizada para firmar la cotización en nombre del cotizante: __________________________________
Cargo de la persona firmante del Formulario de la cotización: ______________________
Firma de la persona nombrada anteriormente: ______________________
Fecha de la firma: El día ________________ del mes ___________________ del año _______.
ANEXO D
Formulario de Garantía de Fiel Cumplimiento
[GARANTIA] DE CUMPLIMIENTO DE CONTRATO
[Insertar nombre de banco]
[GARANTIA] DE CUMPLIMIENTO DE CONTRATO Nº: [insertar número de póliza]
FECHA DE EMISION: [insertar fecha de emisión]
GARANTIZADO: [insertar nombre del oferente]
DIRECCION Y TELEFONO: [insertar dirección y teléfono del oferente]
[Garantía] a favor de [indicar el nombre de la institución a favor de la cual se extiende la garantía], para garantizar que el [Garantizado], salvo fuerza mayor o caso fortuito debidamente comprobados, CUMPLIRA cada uno de los términos, cláusulas, responsabilidades y obligaciones estipuladas en el contrato firmado al efecto entre el [Garantizado]y el Beneficiario, para la Ejecución del Proyecto: “[indicar el nombre del proyecto]”, ubicado en [indicar la ubicación].
SUMA [GARANTIZADA]: [insertar el monto de la suma garantizada en letras y en números].
VIGENCIA De: [insertar fecha de inicio de la vigencia] Hasta: [insertar fecha de fin de la vigencia].
BENEFICIARIO: [insertar nombre del órgano contratante]
CLAUSULA ESPECIAL OBLIGATORIA: la presente garantía será ejecutada por el valor total de la misma, a simple requerimiento del beneficiario, acompañada de una resolución firme de incumplimiento, sin ningún otro requisito, pudiendo requerirse su ejecución en cualquier momento, dentro del plazo de vigencia de la [Garantía].
En fe de lo cual, se emite la presente [Garantía], en la ciudad de [insertar ciudad], Municipio de [insertar municipio], a los [insertar día] del mes de [insertar mes] del año [insertar año].
FIRMA AUTORIZADA
ANEXO E
Formulario de Garantía de Buen Manejo de Anticipo
[GARANTIA] DE BUEN MANEJO DE ANTICIPO
[Insertar nombre de banco]
[GARANTIA] DE BUEN MANEJO DE ANTICIPO Nº: [insertar número de póliza]
FECHA DE EMISION: [insertar fecha de emisión]
GARANTIZADO: [insertar nombre del oferente]
DIRECCION Y TELEFONO: [insertar dirección y teléfono del oferente]
[Garantía] a favor de [indicar el nombre de la institución a favor de la cual se extiende la garantía], para garantizar que el [Garantizado], invertirá el monto del ANTICIPO recibido del Beneficiario, de conformidad con los términos del contrato firmado al efecto entre el Afianzado y el Beneficiario, para la Ejecución del Proyecto: “[indicar el nombre del proyecto]”, ubicado en [indicar la ubicación].
SUMA [GARANTIZADA]: [insertar el monto de la suma garantizada en letras y en números].
VIGENCIA De: [insertar fecha de inicio de la vigencia] Hasta: [insertar fecha de fin de la vigencia].
BENEFICIARIO: [insertar nombre del órgano contratante]
CLAUSULA ESPECIAL OBLIGATORIA: la presente garantía será ejecutada por el valor total de la misma, a simple requerimiento del beneficiario, acompañada de una resolución firme de incumplimiento, sin ningún otro requisito, pudiendo requerirse su ejecución en cualquier momento, dentro del plazo de vigencia de la [Garantía].
En fe de lo cual, se emite la presente [Garantía], en la ciudad de [insertar ciudad], Municipio de [insertar municipio], a los [insertar día] del mes de [insertar mes] del año [insertar año].
FIRMA AUTORIZADA
ANEXO F
Formulario de Garantía de Calidad de las Obras
[GARANTIA] DE CALIDAD DE LAS OBRAS
[Insertar nombre de banco]
[GARANTIA] DE CALIDAD DE LAS OBRAS Nº: [insertar número de póliza]
FECHA DE EMISION: [insertar fecha de emisión]
GARANTIZADO: [insertar nombre del oferente]
DIRECCION Y TELEFONO: [insertar dirección y teléfono del oferente]
[Garantía] a favor de [indicar el nombre de la institución a favor de la cual se extiende la garantía], para garantizar la calidad de obra del Proyecto: “[indicar el nombre del proyecto]”, ubicado en [indicar la ubicación], Construido/entregado por [indicar el nombre del Garantizado].
SUMA [GARANTIZADA]: [insertar
el monto de la suma garantizada en letras y en números].
VIGENCIA De: [insertar fecha de inicio de la vigencia] Hasta: [insertar fecha de fin de la vigencia].
BENEFICIARIO: [insertar nombre del órgano contratante]
CLAUSULA ESPECIAL OBLIGATORIA: la presente garantía será ejecutada por el valor total de la misma, a simple requerimiento del beneficiario, acompañada de una resolución firme de incumplimiento, sin ningún otro requisito, pudiendo requerirse su ejecución en cualquier momento, dentro del plazo de vigencia de la [Garantía].
En fe de lo cual, se emite la presente [Garantía], en la ciudad de [insertar ciudad], Municipio de [insertar municipio], a los [insertar día] del mes de [insertar mes] del año [insertar año].
FIRMA AUTORIZADA